情報更新日:2025年10月01日/広告有効期限:なし
表示閲覧回数(過去30日間):35
お急ぎの方はお電話からお気軽にどうぞ!
092-716-5000 営業時間 / 10:00〜17:00 定休日 / 土曜・日曜・祝日
>物件詳細情報
| 基本情報 | |
|---|---|
| 物件番号 | 10007809122 |
| 店舗形態 | 事務所 |
| オススメ業種 | 事務所 |
| 物件名 | シーマークビル |
| 物件の状態 | 入居中 |
| 引越し時期 | 2025(令和7)年06月上旬 |
| 契約形態と期間 |
定期契約期間:3年間再契約:不可 |
| 所在地・交通 | |
|---|---|
| 所在地 | 福岡県福岡市東区香椎照葉3-2-1 |
| 交 通1 | JR鹿児島本線香椎駅 徒歩32分 |
| 交 通2 | 西鉄バスアイランドシティ 徒歩3分 |
| 賃料 | |
|---|---|
| 賃 料 | 174,097円(税込) |
| 敷 金 |
10ヶ月 |
| 共益費・管理費 | 30,723円(税込) |
| 精算方法 | 実費 |
| その他 | |
|---|---|
| 備考 | 定期借家契約3年/事務所仕上げ/原則事務所利用のみ/保証会社:日商保/ 貸室内水道・ガス引き込み無し/駐車場1台確保可能(駐車場代別途)/ 解約予告:3ヶ月前/違約金:1年未満敷金30%2年未満敷金20%/ |
| 建物 | |
|---|---|
| 建物構造 | 鉄骨造 |
| 建物階建て |
地上8階 |
| 施工年月 | 2007(平成19)年 03月 |
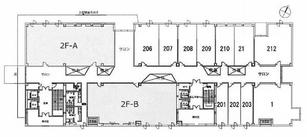
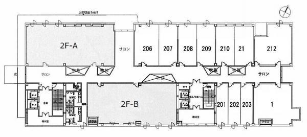
| 募集物件の階数 | 地上 2階 2F-206号室 |
| 契約面積 | 61.56m2(18.62坪) |
| 用途地域 | 2種住居 |
| 設備 | |
|---|---|
| 水道 | 公営 |
| 下水道 | 公共下水 |
| ガス | 都市ガス |
| エレベータ | 有/3基以上 |
| エアコン | 有り/セントラル(全館) |
| トイレ | 有/共用 |
| 給湯室 | 有/共用 |
| キッチン | 無 |
| ネット環境 | 有 |
| 床仕様 | OAフロア |
| セキュリティ | 管理人常駐 |
| 利用時間 | 時間制限有 |
| シャッター | 無 |
| 照明設備 | 有 |
| 内装業者指定 | 有 |
| 駐車場 | |
|---|---|
| 状 況 | 空有 |
| 駐車料金 | 11,000円(税込) |
| 敷 金 | 2ヶ月 |
| 取引情報 | |
|---|---|
| 取引態様 | 専任 |
| 客付 | 可 |
この物件をチェックした人はこんな物件も見ています
- 天神西通りに面した物件です!

福岡県福岡市中央区天神2-5-17
158.35m2(47.90坪)
922,075円(税込)
- 天神西通り沿いの物件です

福岡県福岡市中央区大名2-6-10
45.19m2(13.67坪)
270,666円(税込)
- 亀山工業団地内の倉庫物件、大型車両も駐車可能な広々とした駐車場付き!トイレ完備です。

福岡県糟屋郡志免町別府西1-2-15
396m2(119.79坪)
660,000円(税込)
- ※フリーレントキャンペーン実施中!フリーレント2ヵ月!2026年2月末申込分まで※1階路面店舗!業種ご相談ください!ケーキ店など、臭いや煙が出ないテイクアウト専門店もご相談可能です!

福岡県福岡市中央区鳥飼2-6-8
47.93m2(14.50坪)
165,000円(税込)
- 閑静な住宅街にある物件です。敷地内駐車場確保可能です!

福岡県福岡市博多区吉塚1-28-6
66m2(19.97坪)
175,648円(税込)
今日チェックした物件
お急ぎの方はお電話からお気軽にどうぞ!
092-716-5000 営業時間 / 10:00〜17:00 定休日 / 土曜・日曜・祝日


092-716-5000



















092-716-5000