情報更新日:2026年03月05日/広告有効期限:2026年05月16日
表示閲覧回数(過去30日間):88
お急ぎの方はお電話からお気軽にどうぞ!
092-716-5000 営業時間 / 10:00〜17:00 定休日 / 土曜・日曜・祝日
>物件詳細情報
| 基本情報 | |
|---|---|
| 物件番号 | 10007809146 |
| 店舗形態 | 店舗, 路面店舗, ロードサイド, 事務所 |
| オススメ業種 | 医療関係, 塾・学校・教育関係, 美容関係, 物販関係 |
| 物件名 | ペルフェクタ塩原 |
| 物件の状態 | 入居中 |
| 引越し時期 | 相談 |
| 契約形態と期間 |
普通契約期間:2年間 |
| 所在地・交通 | |
|---|---|
| 所在地 | 福岡県福岡市南区塩原3-2-15 |
| 交 通1 | JR鹿児島本線竹下駅 徒歩8分 |
| 交 通2 | 西鉄天神大牟田線大橋駅 徒歩10分 |
| 賃料 | |
|---|---|
| 賃 料 | 696,300円(税込) |
| 敷 金 |
4ヶ月 |
| 精算方法 | 実費 |
| その他 | |
|---|---|
| 備考 | ※条件調整中。居抜き予定(前業種:教室)/NG業種:歯科医院・軽重飲食不可・コンビニ・ジム/スケルトン返し/2年普通借家/1年未満での解約は敷金の30%、2年未満は20%/3ヶ月前予告 /サービス設置予定:トイレ・エアコンその他内装造作(確認中) |
| 建物 | |
|---|---|
| 建物構造 | 鉄筋コンクリート造 |
| 建物階建て |
地上11階 |
| 施工年月 | 2022(令和4)年 08月 |
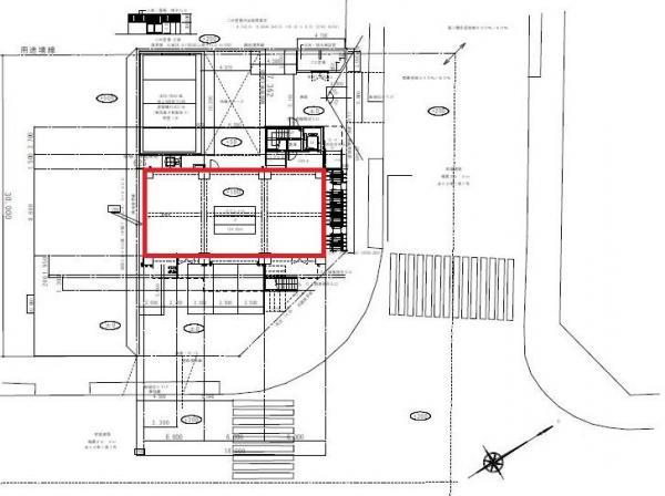
| 募集物件の階数 | 地上 1階 |
| 契約面積 | 154.80m2(46.83坪) |
| 用途地域 | 近商地域 |
| 設備 | |
|---|---|
| 水道 | 公営 |
| 下水道 | 公共下水 |
| エレベータ | 有 |
| 利用時間 | 24時間 |
| シャッター | 無 |
| 照明設備 | 無 |
| 内装業者指定 | 無 |
| 駐車場 | |
|---|---|
| 状 況 | 空有無料 |
| 空き台数 | 5台 |
| 取引情報 | |
|---|---|
| 取引態様 | 媒介 |
| 客付 | 可 |
この物件をチェックした人はこんな物件も見ています
- 天神西通りに面した物件です!

福岡県福岡市中央区天神2-5-17
158.35m2(47.90坪)
922,075円(税込)
- 千早並木通り沿いの1階店舗です!

福岡県福岡市東区千早5-4-25
58.27m2(17.63坪)
290,400円(税込)
- 西鉄井尻駅から徒歩9分の物件です!

福岡県福岡市南区横手1-10-14
133.49m2(40.38坪)
198,000円(税込)
- 地下鉄空港線「赤坂」駅徒歩6分の好立地物件です!

福岡県福岡市中央区赤坂1-15-21
61.42m2(18.58坪)
286,132円(税込)
- 地下鉄「赤坂」駅「薬院大通り」駅徒歩9分の物件です!

福岡県福岡市中央区警固2-12-27
90.45m2(27.36坪)
210,672円(税込)
今日チェックした物件
お急ぎの方はお電話からお気軽にどうぞ!
092-716-5000 営業時間 / 10:00〜17:00 定休日 / 土曜・日曜・祝日


092-716-5000



















092-716-5000