情報更新日:2025年12月24日/広告有効期限:2026年04月30日
表示閲覧回数(過去30日間):29
お急ぎの方はお電話からお気軽にどうぞ!
092-716-5000 営業時間 / 10:00〜17:00 定休日 / 土曜・日曜・祝日
>物件詳細情報
| 基本情報 | |
|---|---|
| 物件番号 | 10007809178 |
| 店舗形態 | 事務所, 店舗 |
| オススメ業種 | 事務所 |
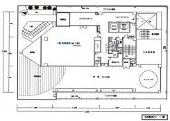
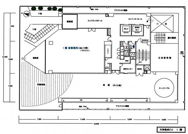
| 物件名 | 天神偕成ビル |
| 物件の状態 | 空き |
| 引越し時期 | 即 |
| 契約形態と期間 |
普通契約期間:2年間 |
| 所在地・交通 | |
|---|---|
| 所在地 | 福岡県福岡市中央区大名2-8-22 |
| 交 通1 | 地下鉄空港線天神駅 徒歩4分 |
| 交 通2 | 地下鉄空港線赤坂駅 徒歩5分 |
| 賃料 | |
|---|---|
| 賃 料 | 賃料未定 |
| 敷 金 |
12ヶ月 |
| 共益費・管理費 | 177,755円(税込) |
| 精算方法 | 実費 |
| その他 | |
|---|---|
| 備考 | 給排水不可 |
| 建物 | |
|---|---|
| 建物構造 | 鉄骨鉄筋コンクリート造 |
| 建物階建て |
地上10階 地下1階 |
| 施工年月 | 1992(平成4)年 02月 |
| 募集物件の階数 | 地上 1階 |
| 契約面積 | 152.63m2(46.17坪) |
| 延床面積 | 6,029.38m2(1,823.89坪) |
| 敷地面積 | 904.76m2(273.69坪) |
| 用途地域 | 商業地域 |
| 設備 | |
|---|---|
| 水道 | 公営 |
| 下水道 | 公共下水 |
| エレベータ | 有 |
| エアコン | 有り/個別 |
| トイレ | 有/共用 |
| 給湯室 | 有/共用 |
| キッチン | 無 |
| ネット環境 | 無 |
| 床仕様 | OAフロア |
| セキュリティ | 機械警備 |
| 利用時間 | 24時間 |
| シャッター | 無 |
| 照明設備 | 有 |
| 内装業者指定 | 無 |
| 駐車場 | |
|---|---|
| 状 況 | 空有 |
| 駐車料金 | 27,500円(税込) |
| 敷 金 | 3ヶ月 |
| 取引情報 | |
|---|---|
| 取引態様 | 媒介 |
| 客付 | 不可 |
この物件をチェックした人はこんな物件も見ています
- 天神西通りに面した物件です!

福岡県福岡市中央区天神2-5-17
158.35m2(47.90坪)
922,075円(税込)
- 2025年12月竣工予定、大正通り沿いの新築オフィスビル!赤坂駅まで徒歩2分の好立地です!

福岡県福岡市中央区赤坂1-13-35
142.50m2(43.11坪)
924,495円(税込)
- 都府楼前駅近くの店舗です。業種、ご相談ください。駐車場7台賃料込み!

福岡県太宰府市通古賀3-9-1
96.98m2(29.34坪)
440,000円(税込)
- 赤坂駅より徒歩1分建築中の物件です!

福岡県福岡市中央区赤坂2-12-12
120.60m2(36.48坪)
882,816円(税込)
- 赤坂駅より徒歩1分建築中の物件です!

福岡県福岡市中央区赤坂2-12-12
251.44m2(76.06坪)
1,547,821円(税込)
今日チェックした物件
お急ぎの方はお電話からお気軽にどうぞ!
092-716-5000 営業時間 / 10:00〜17:00 定休日 / 土曜・日曜・祝日


092-716-5000













092-716-5000