情報更新日:2026年01月08日/広告有効期限:2026年03月15日
表示閲覧回数(過去30日間):48
お急ぎの方はお電話からお気軽にどうぞ!
092-716-5000 営業時間 / 10:00〜17:00 定休日 / 土曜・日曜・祝日
>物件詳細情報
| 基本情報 | |
|---|---|
| 物件番号 | 10007812100 |
| 店舗形態 | 事務所, 路面店舗, 店舗(飲食店可), 倉庫 |
| オススメ業種 | 塾・学校・教育関係, 物販関係, 美容関係, 軽飲食 |
| 物件名 | シャーメゾンSusenji |
| 物件の状態 | 空き |
| 引越し時期 | 即 |
| 契約形態と期間 |
普通契約期間:2年間 |
| 所在地・交通 | |
|---|---|
| 所在地 | 福岡県福岡市西区周船寺1-1-35 |
| 交 通1 | JR筑肥線周船寺駅 徒歩1分 |
| 交 通2 | - |
| 賃料 | |
|---|---|
| 賃 料 | 175,000円(税込) |
| 敷 金 |
5ヶ月 |
| 精算方法 | 実費 |
| 礼 金 | 1ヶ月 |
| その他 | |
|---|---|
| 備考 | 普通借家契約2年(更新料なし)/スケルトン/フリーレント相談可/ 駐車場2台契約必須/駐車料:1台につき税込7,700円/ NG業種:美容室/解約違約金:2年未満賃料3ヶ月+24万円/保証会社指定有/ |
| 建物 | |
|---|---|
| 建物構造 | 鉄骨造 |
| 建物階建て |
地上3階 |
| 施工年月 | 2024(令和6)年 07月 |
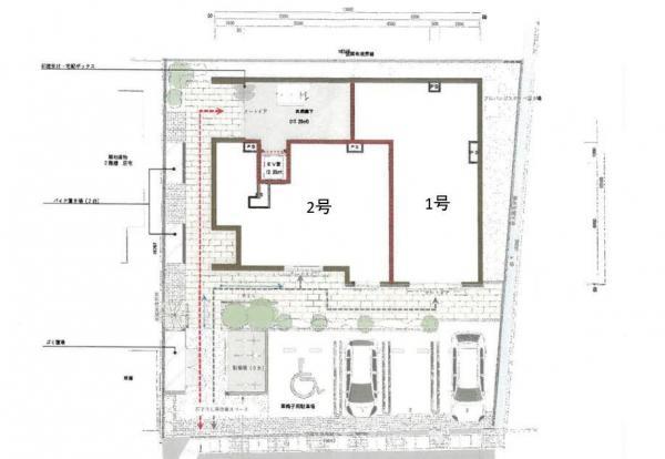
| 募集物件の階数 | 地上 1階 A0101号室 |
| 契約面積 | 52.06m2(15.75坪) |
| 用途地域 | 1種住居 |
| 設備 | |
|---|---|
| 水道 | 公営 |
| 下水道 | 公共下水 |
| エレベータ | 無 |
| エアコン | 無 |
| トイレ | 無 |
| 給湯室 | 無 |
| キッチン | 無 |
| ネット環境 | 無 |
| 床仕様 | スケルトン |
| セキュリティ | 無 |
| 利用時間 | 24時間 |
| シャッター | 無 |
| 照明設備 | 無 |
| 内装業者指定 | 無 |
| 駐車場 | |
|---|---|
| 状 況 | 空有 |
| 駐車料金 | 7,700円(税込) |
| 空き台数 | 2台 |
| 取引情報 | |
|---|---|
| 取引態様 | 媒介 |
| 客付 | 可 |
この物件をチェックした人はこんな物件も見ています
- 天神西通りに面した物件です!

福岡県福岡市中央区天神2-5-17
158.35m2(47.90坪)
922,075円(税込)
- 天神西通り沿いの物件です

福岡県福岡市中央区大名2-6-10
45.19m2(13.67坪)
270,666円(税込)
- 国体道路沿いのオフィスビル

福岡県福岡市中央区大名1-4-1
93.16m2(28.18坪)
賃料未定
- こくてつ通り沿いで視認性良好。事務所仕様ですがサービス業や飲食店もご相談可能です。敷地内駐車場(平置き)3台確保可!

福岡県福岡市博多区美野島2-2-2
60.46m2(18.29坪)
341,000円(税込)
- 中央区渡辺通、2027年1月竣工予定の新築物件です。重飲食相談可!業種ご相談ください。

福岡県福岡市中央区渡辺通4-1-12
63.42m2(19.18坪)
506,088円(税込)
今日チェックした物件
お急ぎの方はお電話からお気軽にどうぞ!
092-716-5000 営業時間 / 10:00〜17:00 定休日 / 土曜・日曜・祝日


092-716-5000



















092-716-5000