情報更新日:2026年02月17日/広告有効期限:2026年04月15日
表示閲覧回数(過去30日間):25
お急ぎの方はお電話からお気軽にどうぞ!
092-716-5000 営業時間 / 10:00〜17:00 定休日 / 土曜・日曜・祝日
>物件詳細情報
| 基本情報 | |
|---|---|
| 物件番号 | 10007905001 |
| 店舗形態 | 事務所, 店舗 |
| オススメ業種 | 美容関係, 医療関係, 塾・学校・教育関係, 軽飲食 |
| 物件名 | NX福岡大手門テラス |
| 物件の状態 | 入居中 |
| 引越し時期 | 2026(令和8)年05月上旬 |
| 契約形態と期間 |
普通契約期間:2年間 |
| 所在地・交通 | |
|---|---|
| 所在地 | 福岡県福岡市中央区大手門2-1-11 |
| 交 通1 | 地下鉄空港線赤坂駅 徒歩8分 |
| 交 通2 | - |
| 賃料 | |
|---|---|
| 賃 料 | 408,507円(税込) |
| 敷 金 |
6ヶ月 |
| 共益費・管理費 | 52,272円(税込) |
| 精算方法 | 実費 |
| その他 | |
|---|---|
| 備考 | ※更新料無し/OAフロア/ワンフロア/保証会社:原則貸主指定の保証会社利用/火災保険:要加入/看板設置要相談(設置可の場合、別途契約要)/内装監修費別途有り(店舗利用の場合)/窓面:ビル指定ブラインド設置済/NG業種:重飲食 |
| 建物 | |
|---|---|
| 建物構造 | 鉄骨造 |
| 建物階建て |
地上9階 |
| 施工年月 | 2021(令和3)年 09月 |
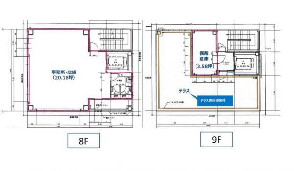
| 募集物件の階数 | 地上 8.9階 |
| 契約面積 | 78.54m2(23.76坪) |
| 用途地域 | 商業地域 |
| 設備 | |
|---|---|
| 水道 | 公営 |
| 下水道 | 公共下水 |
| エレベータ | 有 |
| エアコン | 有り/個別 |
| トイレ | 有/専用 |
| 給湯室 | 有/専用 |
| キッチン | 無 |
| ネット環境 | 無 |
| 床仕様 | OAフロア |
| セキュリティ | 機械警備 |
| 利用時間 | 24時間 |
| シャッター | 無 |
| 照明設備 | 無 |
| 内装業者指定 | 無 |
| 駐車場 | |
|---|---|
| 状 況 | 無し |
| 取引情報 | |
|---|---|
| 取引態様 | 媒介 |
| 客付 | 可 |
この物件をチェックした人はこんな物件も見ています
- 天神西通りに面した物件です!

福岡県福岡市中央区天神2-5-17
158.35m2(47.90坪)
922,075円(税込)
- 中央区役所そば、明治通りに面する住居仕様物件です!天神・赤坂徒歩圏内で、新規開業・小規模オフィス等にオススメ!

福岡県福岡市中央区大名2-4-38
16.37m2(4.95坪)
88,000円(税込)
- 2026年12月末竣工予定。天神1丁目の好立地、新築テナントビルです!重飲食相談可。

福岡県福岡市中央区天神1-2番(以下未定)
35.19m2(10.64坪)
702,568円(税込)
- 2026年12月末竣工予定。天神1丁目の好立地、新築テナントビルです!重飲食相談可。

福岡県福岡市中央区天神1-2番(以下未定)
66.71m2(20.18坪)
554,943円(税込)
- 福岡の中心博多エリアに位置するオフィスです!

福岡県福岡市博多区博多駅前4-24-23
89.26m2(27.00坪)
賃料未定
今日チェックした物件
お急ぎの方はお電話からお気軽にどうぞ!
092-716-5000 営業時間 / 10:00〜17:00 定休日 / 土曜・日曜・祝日


092-716-5000













092-716-5000