情報更新日:2025年08月28日/広告有効期限:2025年12月31日
表示閲覧回数(過去30日間):15
お急ぎの方はお電話からお気軽にどうぞ!
092-716-5000 営業時間 / 10:00〜17:00 定休日 / 土曜・日曜・祝日
>物件詳細情報
| 基本情報 | |
|---|---|
| 物件番号 | 10007905013 |
| 店舗形態 | 事務所 |
| オススメ業種 | 事務所 |
| 物件名 | 東芝福岡ビル |
| 物件の状態 | 空き |
| 引越し時期 | 即 |
| 契約形態と期間 |
普通契約期間:2年間 |
| 所在地・交通 | |
|---|---|
| 所在地 | 福岡県福岡市中央区長浜2-4-1 |
| 交 通1 | 地下鉄空港線赤坂駅 徒歩7分 |
| 交 通2 | - |
| 賃料 | |
|---|---|
| 賃 料 | 賃料未定 |
| 敷 金 |
12ヶ月 |
| その他 | |
|---|---|
| 備考 | |
| 建物 | |
|---|---|
| 建物構造 | 鉄骨造 |
| 建物階建て |
地上17階 地下1階 |
| 施工年月 | 1993(平成5)年 08月 |
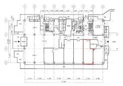
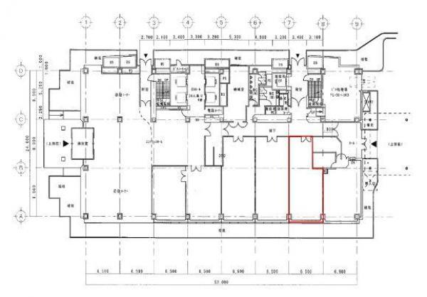
| 募集物件の階数 | 地上 1階 D号室 |
| 契約面積 | 82.12m2(24.84坪) |
| 天井高 | 2,550mm |
| 用途地域 | 商業地域 |
| 設備 | |
|---|---|
| 水道 | 公営 |
| 下水道 | 公共下水 |
| エレベータ | 有/3基以上 |
| エアコン | 有り/個別 |
| トイレ | 有/共用 |
| 給湯室 | 有/共用 |
| キッチン | 無 |
| 床仕様 | OAフロア |
| セキュリティ | 管理人常駐 |
| 利用時間 | 24時間 |
| 照明設備 | 有 |
| 駐車場 | |
|---|---|
| 状 況 | 空有 |
| 取引情報 | |
|---|---|
| 取引態様 | 媒介 |
| 客付 | 不可 |
この物件をチェックした人はこんな物件も見ています
- 赤坂けやき通り沿いです!

福岡県福岡市中央区赤坂2-3-13
361.32m2(109.30坪)
961,928円(税込)
- 天神西通りに面した物件です!

福岡県福岡市中央区天神2-5-17
158.35m2(47.90坪)
922,075円(税込)
- 平尾駅近くの1階居抜き店舗です!業種ご相談ください!

福岡県福岡市南区大楠2-19-4
50.40m2(15.25坪)
99,000円(税込)
- JR南福岡駅、徒歩1分の新築物件です!業種ご相談ください。

福岡県福岡市博多区寿町2-4-30.31
43.19m2(13.06坪)
187,000円(税込)
- JR南福岡駅、徒歩1分の新築物件です!業種ご相談ください。

福岡県福岡市博多区寿町2-4-30.31
68.17m2(20.62坪)
248,600円(税込)
今日チェックした物件
お急ぎの方はお電話からお気軽にどうぞ!
092-716-5000 営業時間 / 10:00〜17:00 定休日 / 土曜・日曜・祝日


092-716-5000













092-716-5000