情報更新日:2025年10月14日/広告有効期限:2026年02月28日
表示閲覧回数(過去30日間):17
お急ぎの方はお電話からお気軽にどうぞ!
092-716-5000 営業時間 / 10:00〜17:00 定休日 / 土曜・日曜・祝日
>物件詳細情報
| 基本情報 | |
|---|---|
| 物件番号 | 100079053055187 |
| 店舗形態 | 事務所 |
| オススメ業種 | 事務所 |
| 物件名 | FRCビル |
| 物件の状態 | 入居中 |
| 引越し時期 | 2025(令和7)年11月下旬 |
| 契約形態と期間 |
普通契約期間:2年間 |
| 所在地・交通 | |
|---|---|
| 所在地 | 福岡県福岡市東区多の津1-14-1 |
| 交 通1 | JR篠栗線柚須駅 徒歩28分 |
| 交 通2 | JR鹿児島本線箱崎駅 徒歩38分 |
| 賃料 | |
|---|---|
| 賃 料 | 161,370円(税込) |
| 敷 金 |
敷金未定 |
| 共益費・管理費 | 67,238円(税込) |
| その他 | |
|---|---|
| 備考 | 立体駐車場:月極→屋上7000円+税、屋根付14000円+税、営業時間→午前6時~午後11時(入出庫可)、時間貸 100円/20分(最大料金なし)/第一駐車場:営業時間→24時間 最初30分無料。30分超1時間まで300円、以降200円/30分(最大料金無) 併設駐車場455台(一部時間併用) |
| 建物 | |
|---|---|
| 建物構造 | 鉄骨鉄筋コンクリート造 |
| 建物階建て |
地上9階 地下1階 |
| 施工年月 | 1975(昭和50)年 07月 |
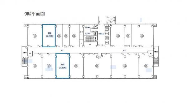
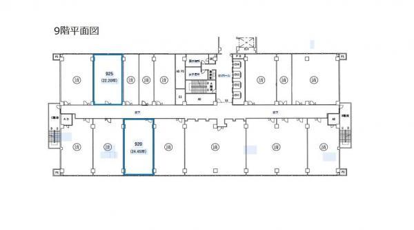
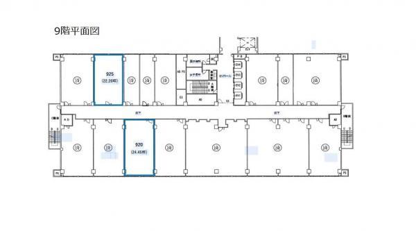
| 募集物件の階数 | 地上 9階 920号室 |
| 契約面積 | 80.83m2(24.45坪) |
| 用途地域 | 準工業 |
| 設備 | |
|---|---|
| 水道 | 公営 |
| 下水道 | 公共下水 |
| エレベータ | 有/3基以上 |
| エアコン | 有 |
| トイレ | 有/共用 |
| 給湯室 | 有/共用 |
| 利用時間 | 時間制限有 |
| 照明設備 | 有 |
| 駐車場 | |
|---|---|
| 状 況 | 空有 |
| 取引情報 | |
|---|---|
| 取引態様 | 媒介 |
| 客付 | 不可 |
この物件をチェックした人はこんな物件も見ています
- 赤坂けやき通り沿いです!

福岡県福岡市中央区赤坂2-3-13
361.32m2(109.30坪)
961,928円(税込)
- 天神西通りに面した物件です!

福岡県福岡市中央区天神2-5-17
158.35m2(47.90坪)
922,075円(税込)
- 平尾駅近くの1階居抜き店舗です!業種ご相談ください!

福岡県福岡市南区大楠2-19-4
50.40m2(15.25坪)
99,000円(税込)
- JR南福岡駅、徒歩1分の新築物件です!業種ご相談ください。

福岡県福岡市博多区寿町2-4-30.31
43.19m2(13.06坪)
187,000円(税込)
- JR南福岡駅、徒歩1分の新築物件です!業種ご相談ください。

福岡県福岡市博多区寿町2-4-30.31
68.17m2(20.62坪)
248,600円(税込)
今日チェックした物件
お急ぎの方はお電話からお気軽にどうぞ!
092-716-5000 営業時間 / 10:00〜17:00 定休日 / 土曜・日曜・祝日


092-716-5000













092-716-5000