情報更新日:2026年01月07日/広告有効期限:2026年03月14日
表示閲覧回数(過去30日間):79
お急ぎの方はお電話からお気軽にどうぞ!
092-716-5000 営業時間 / 10:00〜17:00 定休日 / 土曜・日曜・祝日
>物件詳細情報
| 基本情報 | |
|---|---|
| 物件番号 | 100079053055194 |
| 店舗形態 | 事務所, 路面店舗, 店舗, 店舗(飲食店可) |
| オススメ業種 | 医療関係, 事務所, 物販関係, 塾・学校・教育関係 |
| 物件名 | 北村ビル |
| 物件の状態 | 空き |
| 引越し時期 | 相談 |
| 契約形態と期間 |
普通契約期間:2年間 |
| 所在地・交通 | |
|---|---|
| 所在地 | 福岡県福岡市南区柳河内2-10-55 |
| 交 通1 | 西鉄バス皿山1丁目 徒歩1分 |
| 交 通2 | - |
| 賃料 | |
|---|---|
| 賃 料 | 99,000円(税込) |
| 礼 金 | 198,000円(税込) |
| その他 | |
|---|---|
| 備考 | 現状渡し/駐車場2台(軽自動車)空き有り(建物正面左手より入る)、駐車料:1台4,400円(税込)/保証会社指定有(USEN)/NG業種:風営法許可が必要な業種/ |
| 建物 | |
|---|---|
| 建物構造 | 鉄筋コンクリート造 |
| 建物階建て |
地上4階 |
| 施工年月 | 1980(昭和55)年 03月 |
| 募集物件の階数 | 地上 1階 102号室 |
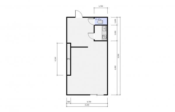
| 契約面積 | 51.98m2(15.72坪) |
| 用途地域 | 1種住居 |
| 設備 | |
|---|---|
| 水道 | 公営 |
| 下水道 | 公共下水 |
| ガス | 都市ガス |
| エレベータ | 無 |
| エアコン | 有 |
| トイレ | 有/専用 |
| 給湯室 | 有/専用 |
| キッチン | 有/専用 |
| ネット環境 | 有 |
| 床仕様 | スケルトン |
| セキュリティ | 無 |
| 利用時間 | 24時間 |
| シャッター | 有/手動 |
| 照明設備 | 無 |
| 内装業者指定 | 無 |
| 駐車場 | |
|---|---|
| 状 況 | 空有 |
| 駐車料金 | 4,400円(税込) |
| 空き台数 | 2台 |
| 取引情報 | |
|---|---|
| 取引態様 | 媒介 |
| 客付 | 不可 |
この物件をチェックした人はこんな物件も見ています
- 天神西通りに面した物件です!

福岡県福岡市中央区天神2-5-17
158.35m2(47.90坪)
922,075円(税込)
- 地下鉄七熊線「天神南」駅徒歩3分の好立地物件です!

福岡県福岡市中央区春吉3-22
40.50m2(12.25坪)
363,825円(税込)
- 地下鉄七熊線「天神南」駅徒歩3分の好立地物件です!

福岡県福岡市中央区春吉3-22
56.53m2(17.10坪)
470,250円(税込)
- 地下鉄七熊線「天神南」駅徒歩3分の好立地物件です!

福岡県福岡市中央区春吉3-22
53.22m2(16.10坪)
442,750円(税込)
- 下大利駅徒歩4分!!敷地内駐車場複数台契約可!

福岡県大野城市東大利1-14-15
36.72m2(11.11坪)
88,000円(税込)
今日チェックした物件
お急ぎの方はお電話からお気軽にどうぞ!
092-716-5000 営業時間 / 10:00〜17:00 定休日 / 土曜・日曜・祝日


092-716-5000



















092-716-5000