情報更新日:2025年09月08日/広告有効期限:なし
表示閲覧回数(過去30日間):45
お急ぎの方はお電話からお気軽にどうぞ!
092-716-5000 営業時間 / 10:00〜17:00 定休日 / 土曜・日曜・祝日
>物件詳細情報
| 基本情報 | |
|---|---|
| 物件番号 | 100079053055241 |
| 店舗形態 | 事務所 |
| オススメ業種 | 事務所 |
| 物件名 | 大手門藤間 |
| 物件の状態 | 空き |
| 引越し時期 | 2025(令和7)年08月中旬 |
| 契約形態と期間 |
普通契約期間:2年間16,500円 |
| 所在地・交通 | |
|---|---|
| 所在地 | 福岡県福岡市中央区大手門1-6-1 |
| 交 通1 | 地下鉄空港線大濠公園駅 徒歩6分 |
| 交 通2 | 西鉄バス大手門3丁目 徒歩2分 |
| 賃料 | |
|---|---|
| 賃 料 | 432,091円(税込) |
| 敷 金 |
6ヶ月 |
| 精算方法 | 実費 |
| その他 | |
|---|---|
| 備考 | 事務所仕上げ/ 水道・ガス引き込み無し/ 解約予告:3ヶ月/違約金:1年未満敷金30%2年未満敷金20%/ |
| 建物 | |
|---|---|
| 建物構造 | 鉄筋コンクリート造 |
| 建物階建て |
地上5階 |
| 施工年月 | 1996(平成8)年 04月 |
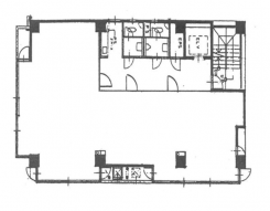
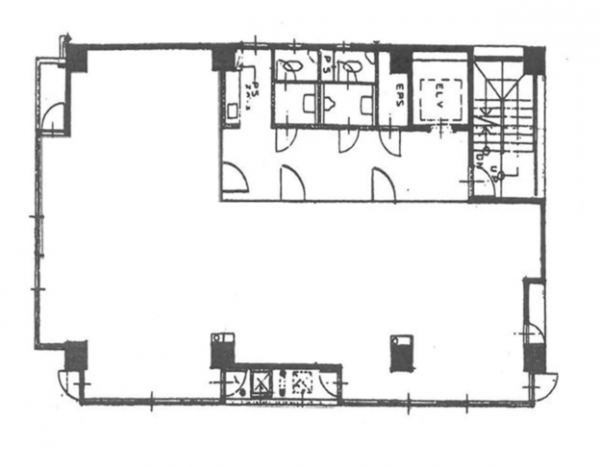
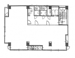
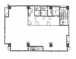
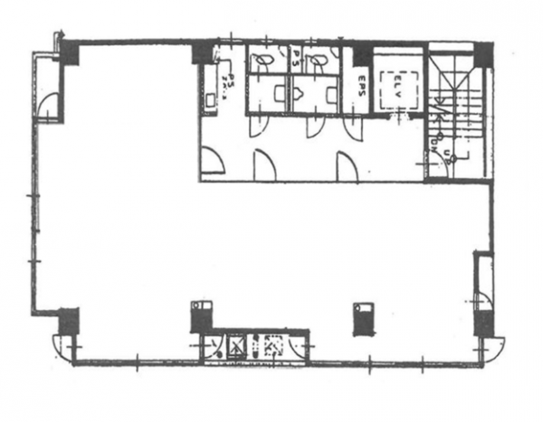
| 募集物件の階数 | 地上 2階 201号室 |
| 契約面積 | 118.08m2(35.72坪) |
| 用途地域 | 商業地域 |
| 設備 | |
|---|---|
| 水道 | 公営 |
| 下水道 | 公共下水 |
| エレベータ | 有 |
| エアコン | 有り/個別 |
| トイレ | 有/共用 |
| 給湯室 | 有/共用 |
| ネット環境 | 無 |
| 床仕様 | タイルカーペット |
| セキュリティ | 機械警備 |
| 利用時間 | 24時間 |
| シャッター | 無 |
| 照明設備 | 有 |
| 内装業者指定 | 無 |
| 駐車場 | |
|---|---|
| 状 況 | 空無 |
| 取引情報 | |
|---|---|
| 取引態様 | 専任 |
| 客付 | 可 |
この物件をチェックした人はこんな物件も見ています
- 赤坂けやき通り沿いです!

福岡県福岡市中央区赤坂2-3-13
361.32m2(109.30坪)
961,928円(税込)
- 天神西通りに面した物件です!

福岡県福岡市中央区天神2-5-17
158.35m2(47.90坪)
922,075円(税込)
- 平尾駅近くの1階居抜き店舗です!業種ご相談ください!

福岡県福岡市南区大楠2-19-4
50.40m2(15.25坪)
99,000円(税込)
- JR南福岡駅、徒歩1分の新築物件です!業種ご相談ください。

福岡県福岡市博多区寿町2-4-30.31
43.19m2(13.06坪)
187,000円(税込)
- JR南福岡駅、徒歩1分の新築物件です!業種ご相談ください。

福岡県福岡市博多区寿町2-4-30.31
68.17m2(20.62坪)
248,600円(税込)
今日チェックした物件
- 賃料見直しました!!西区上山門の1階テナントです。業種等ご相談ください!
-

福岡県福岡市西区上山門1-1-20
41.60m2(12.58坪)
110,000円(税込)
- 赤坂駅より徒歩1分建築中の物件です!
-

福岡県福岡市中央区赤坂2-12-12
251.44m2(76.06坪)
1,547,821円(税込)
- 西鉄大牟田線「大橋」駅徒歩3分!駅近の物件です!
-

福岡県福岡市南区大橋1-16-16
49.59m2(15.00坪)
346,500円(税込)
- 福岡中央郵便局近く、地下鉄天神駅より徒歩6分の物件です!
-

福岡県福岡市中央区天神4-3-30
75.21m2(22.75坪)
375,631円(税込)
お急ぎの方はお電話からお気軽にどうぞ!
092-716-5000 営業時間 / 10:00〜17:00 定休日 / 土曜・日曜・祝日


092-716-5000



















092-716-5000