情報更新日:2025年10月31日/広告有効期限:2025年11月30日
表示閲覧回数(過去30日間):140
お急ぎの方はお電話からお気軽にどうぞ!
092-716-5000 営業時間 / 10:00〜17:00 定休日 / 土曜・日曜・祝日
>物件詳細情報
| 基本情報 | |
|---|---|
| 物件番号 | 1000790530552992 |
| 店舗形態 | 店舗, 店舗(飲食店可), 路面店舗 |
| オススメ業種 | 重飲食, 軽飲食, 物販関係, 美容関係 |
| 物件名 | 平助筆復古堂ビル |
| 物件の状態 | 入居中 |
| 引越し時期 | 2026(令和8)年03月下旬 |
| 契約形態と期間 |
定期契約期間:5年間再契約:不可 |
| 所在地・交通 | |
|---|---|
| 所在地 | 福岡県福岡市中央区春吉3-3-9 |
| 交 通1 | 地下鉄七隈線天神南駅 徒歩6分 |
| 交 通2 | 西鉄バス春吉 徒歩4分 |
| 賃料 | |
|---|---|
| 賃 料 | 670,120円(税込) |
| 敷 金 |
10ヶ月 |
| 精算方法 | 実費 |
| その他 | |
|---|---|
| 備考 | 定期借家契約:5年/解約予告:6か月前/違約金:1年未満敷金30%2年未満敷金20%/ NG業種:風営法許可が必要な業種・カラオケ・クリニック・業種被り |
| 建物 | |
|---|---|
| 建物構造 | 鉄骨造 |
| 建物階建て |
地上6階 |
| 施工年月 | 2021(令和3)年 03月 |
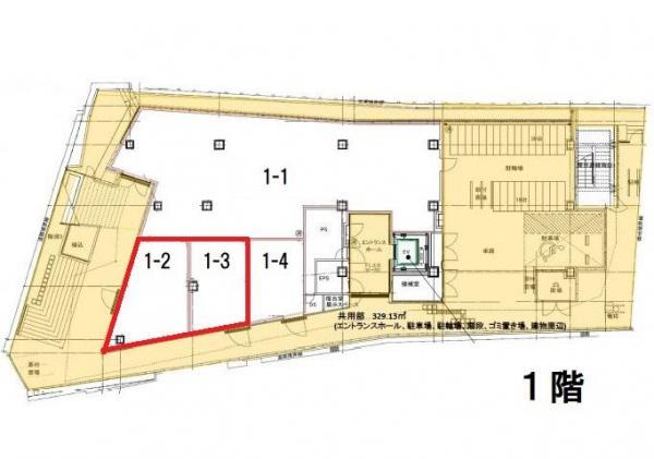
| 募集物件の階数 | 地上 1階 1-2号室 |
| 契約面積 | 50.37m2(15.24坪) |
| 用途地域 | 商業地域 |
| 設備 | |
|---|---|
| 水道 | 公営 |
| 下水道 | 公共下水 |
| ガス | 都市ガス |
| エレベータ | 有 |
| エアコン | 無 |
| トイレ | 無 |
| 給湯室 | 無 |
| キッチン | 無 |
| ネット環境 | 無 |
| 床仕様 | スケルトン |
| セキュリティ | 無 |
| 利用時間 | 24時間 |
| シャッター | 無 |
| 照明設備 | 無 |
| 内装業者指定 | 無 |
| 駐車場 | |
|---|---|
| 状 況 | 無し |
| 取引情報 | |
|---|---|
| 取引態様 | 専任 |
| 客付 | 不可 |
この物件をチェックした人はこんな物件も見ています
- 赤坂けやき通り沿いです!

福岡県福岡市中央区赤坂2-3-13
361.32m2(109.30坪)
961,928円(税込)
- 天神西通りに面した物件です!

福岡県福岡市中央区天神2-5-17
158.35m2(47.90坪)
922,075円(税込)
- 美野島近くの物件です。事務所利用可。現場事務所などご相談可。

福岡県福岡市博多区博多駅前4-35-7
43.62m2(13.20坪)
55,000円(税込)
- 2025年12月竣工予定、大正通り沿いの新築オフィスビル!赤坂駅まで徒歩2分の好立地です!

福岡県福岡市中央区赤坂1-13-35
47.77m2(14.45坪)
309,953円(税込)
- 2025年12月竣工予定、大正通り沿いの新築オフィスビル!赤坂駅まで徒歩2分の好立地です!

福岡県福岡市中央区赤坂1-13-35
48.20m2(14.58坪)
312,741円(税込)
今日チェックした物件
お急ぎの方はお電話からお気軽にどうぞ!
092-716-5000 営業時間 / 10:00〜17:00 定休日 / 土曜・日曜・祝日


092-716-5000













092-716-5000