情報更新日:2025年10月21日/広告有効期限:2026年01月15日
表示閲覧回数(過去30日間):40
お急ぎの方はお電話からお気軽にどうぞ!
092-716-5000 営業時間 / 10:00〜17:00 定休日 / 土曜・日曜・祝日
>物件詳細情報
| 基本情報 | |
|---|---|
| 物件番号 | 1000790530553029 |
| 店舗形態 | 事務所, 店舗, 倉庫 |
| オススメ業種 | 事務所, 塾・学校・教育関係, サービス業 |
| 物件名 | 大濠公園ビル |
| 物件の状態 | 入居中 |
| 引越し時期 | 2026(令和8)年04月中旬 |
| 契約形態と期間 |
普通契約期間:2年間 |
| 所在地・交通 | |
|---|---|
| 所在地 | 福岡県福岡市中央区荒戸2-1-5 |
| 交 通1 | 地下鉄空港線大濠公園駅 徒歩2分 |
| 交 通2 | - |
| 賃料 | |
|---|---|
| 賃 料 | 734,712円(税込) |
| 敷 金 |
12ヶ月 |
| 共益費・管理費 | 159,720円(税込) |
| 精算方法 | 実費 |
| その他 | |
|---|---|
| 備考 | 別途、清掃契約あり/機械式駐車場:5台空きあり27,500円(月額/1台)、敷金3ヵ月/NG業種:飲食、水を利用する業種/ |
| 建物 | |
|---|---|
| 建物構造 | 鉄骨鉄筋コンクリート造 |
| 建物階建て |
地上9階 |
| 施工年月 | 1998(平成10)年 09月 |
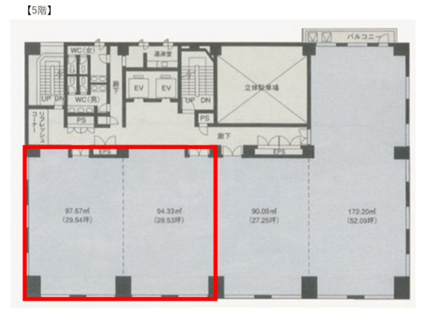
| 募集物件の階数 | 地上 5階 |
| 契約面積 | 192m2(58.08坪) |
| 用途地域 | 商業地域 |
| 設備 | |
|---|---|
| 水道 | 公営 |
| 下水道 | 公共下水 |
| エレベータ | 有/2基 |
| エアコン | 有 |
| トイレ | 有/共用 |
| 給湯室 | 有/共用 |
| キッチン | 無 |
| ネット環境 | 無 |
| 床仕様 | OAフロア |
| セキュリティ | 機械警備 |
| 利用時間 | 24時間 |
| シャッター | 無 |
| 照明設備 | 有 |
| 内装業者指定 | 無 |
| 駐車場 | |
|---|---|
| 状 況 | 空有 |
| 駐車料金 | 27,500円(税込) |
| 空き台数 | 5台 |
| 敷 金 | 3ヶ月 |
| 取引情報 | |
|---|---|
| 取引態様 | 媒介 |
| 客付 | 可 |
この物件をチェックした人はこんな物件も見ています
- 中央区白金エリアの室内型トランクルーム物件です!

福岡県福岡市中央区白金2-6-10
2.46m2(0.74坪)
10,949円(税込)
- 地下鉄「東比恵」駅徒歩2分!大通りに面した立地の良い物件です!

福岡県福岡市博多区東比恵4-3-8
403.50m2(122.06坪)
賃料未定
- 博多湾近く!ホテル内にあるテナント物件です!

福岡県福岡市中央区地行浜2-2-3
245.19m2(74.17坪)
賃料未定
- クリニックに最適!駐車場4台確保可能。

福岡県福岡市博多区吉塚3-7-19
118.95m2(35.98坪)
495,000円(税込)
- 大名に建築中の高層ビル!

福岡県福岡市中央区大名2-6-50
490.71m2(148.44坪)
賃料未定
今日チェックした物件
お急ぎの方はお電話からお気軽にどうぞ!
092-716-5000 営業時間 / 10:00〜17:00 定休日 / 土曜・日曜・祝日


092-716-5000














092-716-5000