情報更新日:2025年11月04日/広告有効期限:なし
表示閲覧回数(過去30日間):59
お急ぎの方はお電話からお気軽にどうぞ!
092-716-5000 営業時間 / 10:00〜17:00 定休日 / 土曜・日曜・祝日
>物件詳細情報
| 基本情報 | |
|---|---|
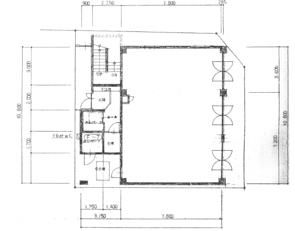
| 物件番号 | 1000790530553055 | 
| 店舗形態 | 事務所, 店舗, ロードサイド | 
| オススメ業種 | 事務所, 美容関係, 倉庫 | 
| 物件名 | ヒフミビル | 
| 物件の状態 | 入居中 | 
| 引越し時期 | 2026(令和8)年01月中旬 | 
| 契約形態と期間 | 
        普通契約期間:2年間16,500円 | 
    
| 所在地・交通 | |
|---|---|
| 所在地 | 福岡県福岡市中央区鳥飼3-1-33 | 
| 交 通1 | 地下鉄空港線西新駅 徒歩12分 | 
| 交 通2 | 西鉄バス鳥飼 徒歩1分 | 
| 賃料 | |
|---|---|
| 賃 料 | 336,336円(税込) | 
| 敷 金 | 
      10ヶ月 | 
| 精算方法 | 実費 | 
| その他 | |
|---|---|
| 備考 | NG:飲食店・風営法許可が必要な業種・学習塾・クリニック/ 解約予告:3ヶ月/違約金:1年未満敷金30%2年未満敷金20%/ 面積が相違する場合があります/ | 
| 建物 | |
|---|---|
| 建物構造 | 鉄筋コンクリート造 | 
| 建物階建て | 
      地上4階 | 
| 施工年月 | 1995(平成7)年 09月 | 
| 募集物件の階数 | 地上 1階 101号室 | 
| 契約面積 | 84.24m2(25.48坪) | 
| 用途地域 | 近商地域 | 
| 設備 | |
|---|---|
| 水道 | 公営 | 
| 下水道 | 公共下水 | 
| ガス | 都市ガス | 
| エレベータ | 無 | 
| エアコン | 無 | 
| トイレ | 無 | 
| 給湯室 | 無 | 
| キッチン | 無 | 
| ネット環境 | 無 | 
| 床仕様 | スケルトン | 
| セキュリティ | 無 | 
| 利用時間 | 24時間 | 
| シャッター | 無 | 
| 照明設備 | 無 | 
| 内装業者指定 | 有 | 
| 駐車場 | |
|---|---|
| 状 況 | 無し | 
| 取引情報 | |
|---|---|
| 取引態様 | 専任 | 
| 客付 | 可 | 
この物件をチェックした人はこんな物件も見ています
- 中央区白金エリアの室内型トランクルーム物件です!
 
福岡県福岡市中央区白金2-6-10
 
          5.68m2(1.72坪)
          19,654円(税込)        
- 那の川、かに本家すぐ隣の物件です!飲食要相談。業種ご相談ください!!
 
福岡県福岡市南区那の川2-1-16
 
          89.35m2(27.03坪)
          504,900円(税込)        
- 福岡高速環状線近く!車のアクセスのよい倉庫付き事務所です!
 
福岡県福岡市早良区田村3-22-13
 
          74.08m2(22.41坪)
          242,000円(税込)        
- 借地希望!各種ご相談ください!
 
福岡県糸島市篠原西3-555-3,557-2(地番)
 
          3,316m2(1,003.09坪)
          賃料未定        
- 亀山工業団地内の倉庫物件、大型車両も駐車可能な広々とした駐車場付き!トイレ完備です。
 
福岡県糟屋郡志免町別府西1-2-15
 
          396m2(119.79坪)
          660,000円(税込)        
今日チェックした物件
お急ぎの方はお電話からお気軽にどうぞ!
092-716-5000 営業時間 / 10:00〜17:00 定休日 / 土曜・日曜・祝日


092-716-5000







       
       
       
      

          




092-716-5000