情報更新日:2025年11月18日/広告有効期限:2026年03月31日
表示閲覧回数(過去30日間):16
お急ぎの方はお電話からお気軽にどうぞ!
092-716-5000 営業時間 / 10:00〜17:00 定休日 / 土曜・日曜・祝日
>物件詳細情報
| 基本情報 | |
|---|---|
| 物件番号 | 1000790530553056 |
| 店舗形態 | 店舗, 事務所 |
| オススメ業種 | サービス業, 事務所 |
| 物件名 | (仮称)春吉3丁目店舗ビル |
| 物件の状態 | 建設中 |
| 引越し時期 | 2026(令和8)年03月上旬 |
| 契約形態と期間 |
定期契約期間:5年間再契約:不可 |
| 所在地・交通 | |
|---|---|
| 所在地 | 福岡県福岡市中央区春吉3-22 |
| 交 通1 | 地下鉄七隈線天神南駅 徒歩3分 |
| 交 通2 | 地下鉄空港線中洲川端駅 徒歩11分 |
| 賃料 | |
|---|---|
| 賃 料 | 531,300円(税込) |
| 敷 金 |
8ヶ月 |
| その他 | |
|---|---|
| 備考 | 火災保険加入必須/その他要確認/スケルトン/入口上部、看板用電気配線引き込み済 |
| 建物 | |
|---|---|
| 建物構造 | 鉄骨造 |
| 建物階建て |
地上7階 |
| 施工年月 | 2026(令和8)年 02月 |
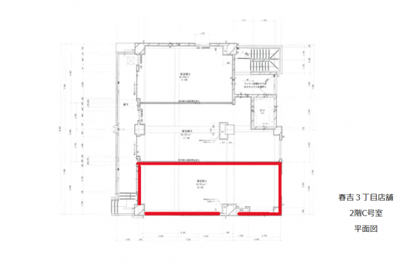
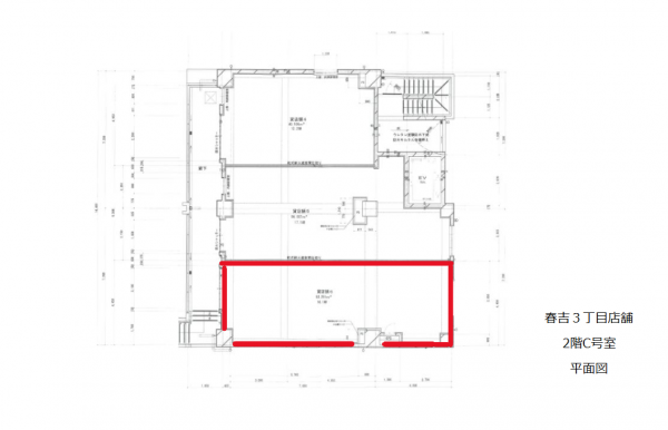
| 募集物件の階数 | 地上 2階 C号室 |
| 契約面積 | 53.22m2(16.10坪) |
| 設備 | |
|---|---|
| エレベータ | 有 |
| 駐車場 | |
|---|---|
| 状 況 | 近隣 |
| 取引情報 | |
|---|---|
| 取引態様 | 媒介 |
| 客付 | 不可 |
この物件をチェックした人はこんな物件も見ています
- 地下鉄空港線千代県庁口から徒歩3分の物件になります!

福岡県福岡市博多区千代3-3-4
96.89m2(29.31坪)
290,169円(税込)
- 地下鉄空港線「天神」駅徒歩3分の繁華街に位置する大型商業施設です!

福岡県福岡市中央区大名2-6-50
857.29m2(259.33坪)
賃料未定
- 博多駅徒歩8分のオフィスビルです!

福岡県福岡市博多区博多駅前3-10-14
94.64m2(28.63坪)
535,700円(税込)
- エリア随一の大型複合ビル!

福岡県福岡市東区多の津1-14-1
243.14m2(73.55坪)
485,430円(税込)
- 地下鉄七熊線「天神南」駅から徒歩3分の物件です!

福岡県福岡市中央区春吉3-22
56.53m2(17.10坪)
564,300円(税込)
今日チェックした物件
お急ぎの方はお電話からお気軽にどうぞ!
092-716-5000 営業時間 / 10:00〜17:00 定休日 / 土曜・日曜・祝日


092-716-5000













092-716-5000