情報更新日:2025年11月04日/広告有効期限:2026年03月31日
表示閲覧回数(過去30日間):17
お急ぎの方はお電話からお気軽にどうぞ!
092-716-5000 営業時間 / 10:00〜17:00 定休日 / 土曜・日曜・祝日
>物件詳細情報
| 基本情報 | |
|---|---|
| 物件番号 | 1000790530553061 | 
| 店舗形態 | 店舗, 事務所 | 
| オススメ業種 | サービス業, 事務所 | 
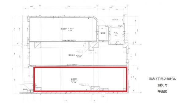
| 物件名 | (仮称)春吉3丁目店舗ビル | 
| 物件の状態 | 建設中 | 
| 引越し時期 | 2026(令和8)年03月上旬 | 
| 契約形態と期間 | 
                定期契約期間:5年間再契約:不可 | 
    
| 所在地・交通 | |
|---|---|
| 所在地 | 福岡県福岡市中央区春吉3-22 | 
| 交 通1 | 地下鉄七隈線天神南駅 徒歩3分 | 
| 交 通2 | 地下鉄空港線中洲川端駅 徒歩11分 | 
| 賃料 | |
|---|---|
| 賃 料 | 583,275円(税込) | 
| 敷 金 | 
      8ヶ月 | 
| その他 | |
|---|---|
| 備考 | 火災保険加入必須/その他要確認/スケルトン/入口上部、看板用電気配線引き込み済 | 
| 建物 | |
|---|---|
| 建物構造 | 鉄骨造 | 
| 建物階建て | 
      地上7階 | 
| 施工年月 | 2026(令和8)年 02月 | 
| 募集物件の階数 | 地上 1階 C号室 | 
| 契約面積 | 50.08m2(15.15坪) | 
| 設備 | |
|---|---|
| エレベータ | 有 | 
| 駐車場 | |
|---|---|
| 状 況 | 近隣 | 
| 取引情報 | |
|---|---|
| 取引態様 | 媒介 | 
| 客付 | 不可 | 
この物件をチェックした人はこんな物件も見ています
- 地下鉄天神駅3番出口直結の好立地オフィス物件です!諸条件応相談!
 
福岡県福岡市中央区天神2-8-41
 
          74.31m2(22.48坪)
          賃料未定        
- 地下鉄天神駅3番出口直結の好立地オフィス物件です!諸条件応相談!
 
福岡県福岡市中央区天神2-8-41
 
          44.56m2(13.48坪)
          賃料未定        
- 地下鉄天神駅3番出口直結の好立地オフィス物件です!諸条件応相談!
 
福岡県福岡市中央区天神2-8-41
 
          35.64m2(10.78坪)
          賃料未定        
- 地下鉄天神駅3番出口直結の好立地オフィス物件です!諸条件応相談!
 
福岡県福岡市中央区天神2-8-41
 
          72.26m2(21.86坪)
          賃料未定        
- 地下鉄天神駅3番出口直結の好立地オフィス物件です!諸条件応相談!
 
福岡県福岡市中央区天神2-8-41
 
          44.56m2(13.48坪)
          賃料未定        
今日チェックした物件
お急ぎの方はお電話からお気軽にどうぞ!
092-716-5000 営業時間 / 10:00〜17:00 定休日 / 土曜・日曜・祝日


092-716-5000






       
             
      

          




092-716-5000