情報更新日:2025年11月04日/広告有効期限:2026年03月31日
表示閲覧回数(過去30日間):20
お急ぎの方はお電話からお気軽にどうぞ!
092-716-5000 営業時間 / 10:00〜17:00 定休日 / 土曜・日曜・祝日
>物件詳細情報
| 基本情報 | |
|---|---|
| 物件番号 | 1000790530553062 | 
| 店舗形態 | 店舗, 事務所 | 
| オススメ業種 | サービス業, 事務所 | 
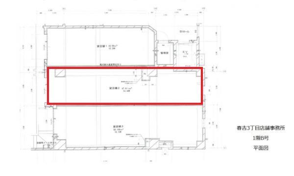
| 物件名 | (仮称)春吉3丁目店舗ビル | 
| 物件の状態 | 建設中 | 
| 引越し時期 | 2026(令和8)年03月上旬 | 
| 契約形態と期間 | 
                定期契約期間:5年間再契約:不可 | 
    
| 所在地・交通 | |
|---|---|
| 所在地 | 福岡県福岡市中央区春吉3-22 | 
| 交 通1 | 地下鉄七隈線天神南駅 徒歩3分 | 
| 交 通2 | 地下鉄空港線中洲川端駅 徒歩11分 | 
| 賃料 | |
|---|---|
| 賃 料 | 557,865円(税込) | 
| 敷 金 | 
      8ヶ月 | 
| その他 | |
|---|---|
| 備考 | 火災保険加入必須/その他要確認/スケルトン/入口上部、看板用電気配線引き込み済 | 
| 建物 | |
|---|---|
| 建物構造 | 鉄骨造 | 
| 建物階建て | 
      地上7階 | 
| 施工年月 | 2026(令和8)年 02月 | 
| 募集物件の階数 | 地上 1階 B号室 | 
| 契約面積 | 47.90m2(14.49坪) | 
| 設備 | |
|---|---|
| エレベータ | 有 | 
| 駐車場 | |
|---|---|
| 状 況 | 近隣 | 
| 取引情報 | |
|---|---|
| 取引態様 | 媒介 | 
| 客付 | 不可 | 
この物件をチェックした人はこんな物件も見ています
- 地下鉄空港線「中洲川端」駅徒歩約7分の物件です!
 
福岡県福岡市博多区古門戸町
 
          641.98m2(194.20坪)
          3,631,540円(税込)        
- 中央区白金エリアの室内型トランクルーム物件です!
 
福岡県福岡市中央区白金2-6-10
 
          2.64m2(0.80坪)
          11,712円(税込)        
- 百道エリアの高層オフィス。
 
福岡県福岡市早良区百道浜1-7-4
 
          717.36m2(217.00坪)
          3,103,100円(税込)        
- JR吉塚駅から徒歩1分の物件です!
 
福岡県福岡市博多区東公園2-20
 
          99.85m2(30.20坪)
          531,520円(税込)        
- 地下鉄西新駅より徒歩3分の1階店舗!業種ご相談ください!A、B区画、分割も可です!
 
福岡県福岡市早良区西新4-7-24
 
          190.02m2(57.48坪)
          1,020,800円(税込)        
今日チェックした物件
お急ぎの方はお電話からお気軽にどうぞ!
092-716-5000 営業時間 / 10:00〜17:00 定休日 / 土曜・日曜・祝日


092-716-5000






       
             
      

          




092-716-5000