情報更新日:2026年01月13日/広告有効期限:2026年03月20日
表示閲覧回数(過去30日間):34
お急ぎの方はお電話からお気軽にどうぞ!
092-716-5000 営業時間 / 10:00〜17:00 定休日 / 土曜・日曜・祝日
>物件詳細情報
| 基本情報 | |
|---|---|
| 物件番号 | 100079053055309576 |
| 店舗形態 | 店舗, 店舗(飲食店可), 事務所 |
| オススメ業種 | サービス業, 物販関係, 重飲食, 事務所 |
| 物件名 | 渡辺通4丁目2階店舗 |
| 物件の状態 | 建設中 |
| 引越し時期 | 相談 |
| 契約形態と期間 |
定期契約期間:5年間再契約:不可 |
| 所在地・交通 | |
|---|---|
| 所在地 | 福岡県福岡市中央区渡辺通4-1-12 |
| 交 通1 | 地下鉄七隈線渡辺通駅 徒歩4分 |
| 交 通2 | 西鉄天神大牟田線薬院駅 徒歩5分 |
| 賃料 | |
|---|---|
| 賃 料 | 142,736円(税込) |
| 敷 金 |
6ヶ月 |
| 精算方法 | 実費 |
| 礼 金 | 1ヶ月 |
| その他 | |
|---|---|
| 備考 | 2027年1月竣工予定/定期借家契約:5年/共益費賃料に含む/保証会社:全保連(口座振替利用必須)、初回保証料:家賃総額の100%、連帯保証人必要(法人の場合、代表取締役)、 継続保証委託料:月額賃料の10%(年)/火災保険加入必須/光熱費:実費/ |
| 建物 | |
|---|---|
| 建物構造 | 鉄筋コンクリート造 |
| 建物階建て |
地上5階 |
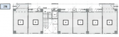
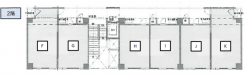
| 募集物件の階数 | 地上 2階 H号室 |
| 契約面積 | 26.81m2(8.11坪) |
| 用途地域 | 商業地域 |
| 駐車場 | |
|---|---|
| 状 況 | 無し |
| 取引情報 | |
|---|---|
| 取引態様 | 媒介 |
| 客付 | 可 |
この物件をチェックした人はこんな物件も見ています
- 天神西通りに面した物件です!

福岡県福岡市中央区天神2-5-17
158.35m2(47.90坪)
922,075円(税込)
- 千早並木通り沿いの1階店舗です!

福岡県福岡市東区千早5-4-25
58.27m2(17.63坪)
290,400円(税込)
- 西鉄井尻駅から徒歩9分の物件です!

福岡県福岡市南区横手1-10-14
133.49m2(40.38坪)
198,000円(税込)
- 地下鉄空港線「赤坂」駅徒歩6分の好立地物件です!

福岡県福岡市中央区赤坂1-15-21
61.42m2(18.58坪)
286,132円(税込)
- 地下鉄「赤坂」駅「薬院大通り」駅徒歩9分の物件です!

福岡県福岡市中央区警固2-12-27
90.45m2(27.36坪)
210,672円(税込)
今日チェックした物件
お急ぎの方はお電話からお気軽にどうぞ!
092-716-5000 営業時間 / 10:00〜17:00 定休日 / 土曜・日曜・祝日


092-716-5000













092-716-5000