情報更新日:2025年11月19日/広告有効期限:なし
表示閲覧回数(過去30日間):31
お急ぎの方はお電話からお気軽にどうぞ!
092-716-5000 営業時間 / 10:00〜17:00 定休日 / 土曜・日曜・祝日
>物件詳細情報
| 基本情報 | |
|---|---|
| 物件番号 | 100079053055309581 |
| 店舗形態 | 事務所, レンタルオフィス, 店舗 |
| オススメ業種 | 事務所, 美容関係 |
| 物件名 | 天神パインクレスト |
| 物件の状態 | 入居中 |
| 引越し時期 | 2026(令和8)年02月上旬 |
| 契約形態と期間 |
普通契約期間:2年間 |
| 所在地・交通 | |
|---|---|
| 所在地 | 福岡県福岡市中央区天神2-3-10 |
| 交 通1 | 西鉄天神大牟田線西鉄福岡(天神)駅 徒歩4分 |
| 交 通2 | - |
| 賃料 | |
|---|---|
| 賃 料 | 68,200円(税込) |
| 敷 金 |
5ヶ月 |
| その他月額費用 1 | 町費 |
| 精算方法 | 実費 |
| その他 | |
|---|---|
| 備考 | 住居仕様、床:フローリング/解約予告:3ヵ月、短期解約違約金:1年未満敷金30%、2年未満敷金20%/飲食NG/ |
| 建物 | |
|---|---|
| 建物構造 | 鉄骨鉄筋コンクリート造 |
| 建物階建て |
地上13階 |
| 施工年月 | 1975(昭和50)年 06月 |
| 募集物件の階数 | 地上 11階 1102号室 |
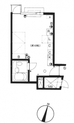
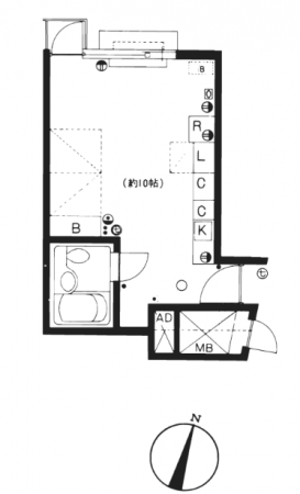
| 契約面積 | 20.46m2(6.19坪) |
| 用途地域 | 商業地域 |
| 設備 | |
|---|---|
| 水道 | 公営 |
| 下水道 | 公共下水 |
| ガス | 都市ガス |
| エレベータ | 有/2基 |
| エアコン | 無 |
| トイレ | 有/専用 |
| 給湯室 | 無 |
| キッチン | 有/専用 |
| セキュリティ | 管理人常駐 |
| 利用時間 | 24時間 |
| シャッター | 無 |
| 照明設備 | 無 |
| 内装業者指定 | 無 |
| 駐車場 | |
|---|---|
| 状 況 | 無し |
| 取引情報 | |
|---|---|
| 取引態様 | 専任 |
| 客付 | 可 |
この物件をチェックした人はこんな物件も見ています
- 賃料見直しました!!六本松の新築物件です!軽・重飲食相談可能!敷金0プラン選べます!

福岡県福岡市中央区六本松2-1-12
96.21m2(29.10坪)
576,180円(税込)
- 今宿駅まで徒歩4分!業種等お問い合わせください!

福岡県福岡市西区今宿1-5-27
173.88m2(52.60坪)
385,000円(税込)
- 近隣商業施設あり!新規開業におすすめ!

福岡県福岡市博多区須崎町1-5
20.40m2(6.17坪)
88,000円(税込)
- 那の川、かに本家すぐ隣の物件です!飲食要相談。業種ご相談ください!!

福岡県福岡市南区那の川2-1-16
89.35m2(27.03坪)
504,900円(税込)
- 軽飲食相談可能!けやき通り沿いの路面物件です。

福岡県福岡市中央区赤坂3-9-25
34.81m2(10.53坪)
254,826円(税込)
今日チェックした物件
お急ぎの方はお電話からお気軽にどうぞ!
092-716-5000 営業時間 / 10:00〜17:00 定休日 / 土曜・日曜・祝日


092-716-5000













092-716-5000