情報更新日:2025年11月27日/広告有効期限:2026年02月14日
表示閲覧回数(過去30日間):11
お急ぎの方はお電話からお気軽にどうぞ!
092-716-5000 営業時間 / 10:00〜17:00 定休日 / 土曜・日曜・祝日
>物件詳細情報
| 基本情報 | |
|---|---|
| 物件番号 | 100079053055309614 |
| 店舗形態 | 居抜店舗, 店舗(飲食店可), 店舗 |
| オススメ業種 | 軽飲食, 重飲食, 美容関係, 物販関係 |
| 物件名 | リバーフェイス博多 |
| 物件の状態 | 入居中 |
| 引越し時期 | 2026(令和8)年05月下旬 |
| 契約形態と期間 |
普通契約期間:3年間 |
| 所在地・交通 | |
|---|---|
| 所在地 | 福岡県福岡市博多区中洲5-4-6 |
| 交 通1 | 地下鉄空港線中洲川端駅 徒歩2分 |
| 交 通2 | 西鉄天神大牟田線西鉄福岡(天神)駅 徒歩8分 |
| 賃料 | |
|---|---|
| 賃 料 | 396,000円(税込) |
| 敷 金 |
6ヶ月 |
| 共益費・管理費 | 61,600円(税込) |
| 精算方法 | 実費 |
| その他 | |
|---|---|
| 備考 | スケルトン渡し/NG業種:ガールズバー、風営法許可が必要な業種/保証会社指定有:USEN/解約予告:6ヵ月前/ |
| 建物 | |
|---|---|
| 建物構造 | 鉄筋コンクリート造 |
| 建物階建て |
地上14階 |
| 施工年月 | 2006(平成18)年 03月 |
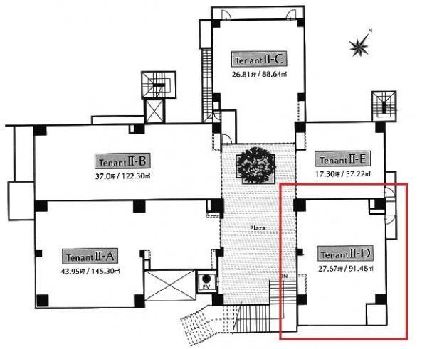
| 募集物件の階数 | 地上 2階 2-D号室 |
| 契約面積 | 91.48m2(27.67坪) |
| 用途地域 | 商業地域 |
| 設備 | |
|---|---|
| 水道 | 公営 |
| 下水道 | 公共下水 |
| ガス | LPG |
| エレベータ | 有 |
| エアコン | 無 |
| トイレ | 無 |
| 給湯室 | 無 |
| キッチン | 無 |
| ネット環境 | 無 |
| 床仕様 | スケルトン |
| セキュリティ | 無 |
| 利用時間 | 時間制限有 |
| シャッター | 有/手動 |
| 照明設備 | 無 |
| 内装業者指定 | 無 |
| 駐車場 | |
|---|---|
| 状 況 | 空有 |
| 駐車料金 | 23,100円(税込) |
| 空き台数 | 1台 |
| 取引情報 | |
|---|---|
| 取引態様 | 専任 |
| 客付 | 可 |
この物件をチェックした人はこんな物件も見ています
- 赤坂けやき通り沿いです!

福岡県福岡市中央区赤坂2-3-13
361.32m2(109.30坪)
961,928円(税込)
- 天神西通りに面した物件です!

福岡県福岡市中央区天神2-5-17
158.35m2(47.90坪)
922,075円(税込)
- 地下鉄祇園駅から徒歩3分!

福岡県福岡市博多区博多駅前1-7-22
88.03m2(26.63坪)
366,163円(税込)
- 地下鉄祇園駅から徒歩3分!

福岡県福岡市博多区博多駅前1-7-22
70.21m2(21.24坪)
292,050円(税込)
- 博多駅から徒歩1分

福岡県福岡市博多区博多駅東1-12-7
73.98m2(22.38坪)
393,888円(税込)
今日チェックした物件
お急ぎの方はお電話からお気軽にどうぞ!
092-716-5000 営業時間 / 10:00〜17:00 定休日 / 土曜・日曜・祝日


092-716-5000













092-716-5000