情報更新日:2026年04月08日/広告有効期限:2026年07月31日
表示閲覧回数(過去30日間):28
お急ぎの方はお電話からお気軽にどうぞ!
092-716-5000 営業時間 / 10:00〜17:00 定休日 / 土曜・日曜・祝日
>物件詳細情報
| 基本情報 | |
|---|---|
| 物件番号 | 100079053055309699 |
| 店舗形態 | 事務所 |
| オススメ業種 | 事務所 |
| 物件名 | 博多東ハニービル |
| 物件の状態 | 入居中 |
| 引越し時期 | 2026(令和8)年06月上旬 |
| 契約形態と期間 |
定期契約期間:5年間再契約:不可 |
| 所在地・交通 | |
|---|---|
| 所在地 | 福岡県福岡市博多区博多駅東2-2-2 |
| 交 通1 | 地下鉄空港線博多駅 徒歩3分 |
| 交 通2 | JR鹿児島本線博多駅 徒歩3分 |
| 賃料 | |
|---|---|
| 賃 料 | 187,405円(税込) |
| 敷 金 |
10ヶ月 |
| 共益費・管理費 | 52,659円(税込) |
| 精算方法 | 実費 |
| その他 | |
|---|---|
| 備考 | 定期借家契約5年※2034年頃ビル建て替え予定/耐震補強工事済/光ファイバーの幹線引込済(EPSから各テナントまでのは配管・配線工事で使用可)/24時間入退館可(セキュリティ完備)/個別空調(3~9階の冷・暖房の切り替えはフロア毎の一斉切替え)/AED(自動体外式除細動器)完備 |
| 建物 | |
|---|---|
| 建物構造 | 鉄筋コンクリート造 |
| 建物階建て |
地上9階 地下2階 |
| 施工年月 | 1974(昭和49)年 12月 |
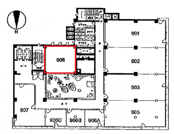
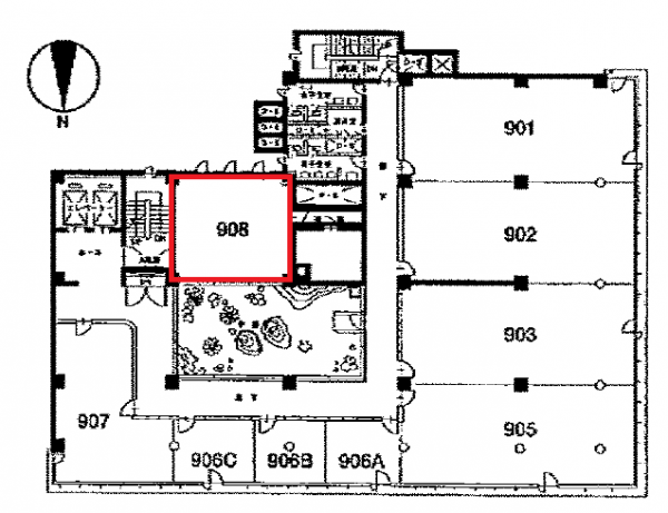
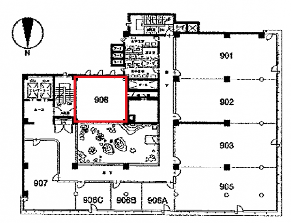
| 募集物件の階数 | 地上 9階 908号室 |
| 契約面積 | 46.55m2(14.08坪) |
| 用途地域 | 商業地域 |
| 設備 | |
|---|---|
| 水道 | 公営 |
| 下水道 | 公共下水 |
| エレベータ | 有/2基 |
| エアコン | 有り/個別 |
| トイレ | 有/共用 |
| 給湯室 | 有/共用 |
| ネット環境 | 有 |
| 床仕様 | OAフロア |
| セキュリティ | 機械警備 |
| 利用時間 | 24時間 |
| 照明設備 | 有 |
| 駐車場 | |
|---|---|
| 状 況 | 空有 |
| 駐車料金 | 30,800円(税込) |
| 敷 金 | 2ヶ月 |
| 取引情報 | |
|---|---|
| 取引態様 | 媒介 |
| 客付 | 不可 |
この物件をチェックした人はこんな物件も見ています
- 天神西通りに面した物件です!

福岡県福岡市中央区天神2-5-17
158.35m2(47.90坪)
922,075円(税込)
- 昭和通り沿い、天神駅より徒歩3分の物件です!

福岡県福岡市中央区天神3-4-7
60.40m2(18.27坪)
281,358円(税込)
- 地下鉄七隈線「天神南」駅徒歩1分の好立地!事務所物件、リノベーション工事済みです!

福岡県福岡市中央区渡辺通5-23-2
37.74m2(11.42坪)
132,000円(税込)
- 大正通り沿いの新築オフィスビル!赤坂駅まで徒歩2分の好立地です!

福岡県福岡市中央区赤坂1-13-35
46.53m2(14.08坪)
301,802円(税込)
- 大正通り沿いの新築オフィスビル!赤坂駅まで徒歩2分の好立地です!

福岡県福岡市中央区赤坂1-13-35
48.20m2(14.58坪)
312,741円(税込)
今日チェックした物件
お急ぎの方はお電話からお気軽にどうぞ!
092-716-5000 営業時間 / 10:00〜17:00 定休日 / 土曜・日曜・祝日


092-716-5000













092-716-5000