情報更新日:2026年05月07日/広告有効期限:なし
表示閲覧回数(過去30日間):80
お急ぎの方はお電話からお気軽にどうぞ!
092-716-5000 営業時間 / 10:00〜17:00 定休日 / 土曜・日曜・祝日
>物件詳細情報
| 基本情報 | |
|---|---|
| 物件番号 | 100079053055309715 |
| 店舗形態 | 店舗, 店舗(飲食店可), 事務所 |
| オススメ業種 | 医療関係, 塾・学校・教育関係, 物販関係 |
| 物件名 | Y’s GARDEN伊都 |
| 物件の状態 | 空き |
| 引越し時期 | 2026(令和8)年05月上旬 |
| 契約形態と期間 |
定期契約期間:10年間再契約:可 |
| 所在地・交通 | |
|---|---|
| 所在地 | 福岡県福岡市西区北原1-9-7 |
| 交 通1 | JR筑肥線九大学研都市駅 徒歩5分 |
| 交 通2 | 昭和バス九大学研都市駅 徒歩4分 |
| 賃料 | |
|---|---|
| 賃 料 | 839,982円(税込) |
| 敷 金 |
6ヶ月 |
| 精算方法 | 実費 |
| その他 | |
|---|---|
| 備考 | 定期借家契約10年(再契約型)スケルトン/NG:風営法許可が必要な業種・ガールズバー・カラオケ設置・同一施設内同一業種・エステ・福祉系施設・美容室/解約予告:6ヶ月/短期解約違約金:1年未満敷金30%2年未満敷金20%/お客様用共用駐車場有/ |
| 建物 | |
|---|---|
| 建物構造 | 鉄骨造 |
| 建物階建て |
地上2階 |
| 施工年月 | 2009(平成21)年 11月 |
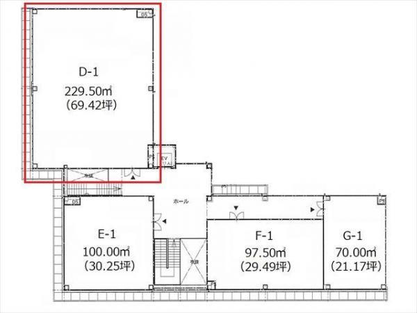
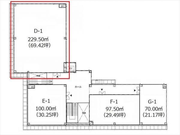
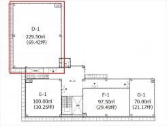
| 募集物件の階数 | 地上 2階 D-1号室 |
| 契約面積 | 229.50m2(69.42坪) |
| 用途地域 | 準住居 |
| 設備 | |
|---|---|
| 水道 | 公営 |
| 下水道 | 公共下水 |
| ガス | 都市ガス |
| エレベータ | 有 |
| エアコン | 無 |
| トイレ | 無 |
| 給湯室 | 無 |
| キッチン | 無 |
| ネット環境 | 無 |
| 床仕様 | スケルトン |
| セキュリティ | 無 |
| 利用時間 | 24時間 |
| シャッター | 無 |
| 照明設備 | 無 |
| 内装業者指定 | 無 |
| 駐車場 | |
|---|---|
| 状 況 | 空有 |
| 取引情報 | |
|---|---|
| 取引態様 | 専任 |
| 客付 | 可 |
この物件をチェックした人はこんな物件も見ています
- 天神西通りに面した物件です!

福岡県福岡市中央区天神2-5-17
158.35m2(47.90坪)
922,075円(税込)
- 昭和通り沿い、天神駅より徒歩3分の物件です!

福岡県福岡市中央区天神3-4-7
60.40m2(18.27坪)
281,358円(税込)
- JR鹿児島本線「博多」駅徒歩10分!屋上看板設置可のオフィス物件です!

福岡県福岡市博多区博多駅前4-37-2
73.06m2(22.10坪)
332,200円(税込)
- 前面平置き駐車場5台分込み!教室仕様の居抜きです。室内画像にあるオフィス家具などは撤去予定です(居抜きについては条件調整中につき、変動する可能性があります)。

福岡県福岡市南区塩原3-2-15
154.80m2(46.83坪)
696,300円(税込)
- 駐車場は店舗前面と裏手に9台確保可能です!業種、ご相談ください。

福岡県福岡市東区唐原7-5-17
122.30m2(37.00坪)
406,890円(税込)
今日チェックした物件
お急ぎの方はお電話からお気軽にどうぞ!
092-716-5000 営業時間 / 10:00〜17:00 定休日 / 土曜・日曜・祝日


092-716-5000



















092-716-5000