情報更新日:2026年01月14日/広告有効期限:2026年04月16日
表示閲覧回数(過去30日間):41
お急ぎの方はお電話からお気軽にどうぞ!
092-716-5000 営業時間 / 10:00〜17:00 定休日 / 土曜・日曜・祝日
>物件詳細情報
| 基本情報 | |
|---|---|
| 物件番号 | 100079053055309718 |
| 店舗形態 | 事務所 |
| オススメ業種 | 事務所 |
| 物件名 | 日大ビル |
| 物件の状態 | 空き |
| 引越し時期 | 即 |
| 契約形態と期間 |
普通契約期間:2年間 |
| 所在地・交通 | |
|---|---|
| 所在地 | 福岡県福岡市博多区美野島2-16-8 |
| 交 通1 | JR鹿児島本線博多駅 徒歩20分 |
| 交 通2 | 西鉄天神大牟田線西鉄平尾駅 徒歩18分 |
| 賃料 | |
|---|---|
| 賃 料 | 156,200円(税込) |
| 敷 金 |
6ヶ月 |
| 共益費・管理費 | 36,520円(税込) |
| 精算方法 | 実費 |
| その他 | |
|---|---|
| 備考 | 内覧可(要事前予約)/駐車場:税込15,400円、駐車場は駐車場管理会社と別契約(サイズ制限:全長4.9m、幅1.85m、高1.55m、重量1.6t)/2年自動更新/短期解約違約金:1年未満1ヶ月/解約予告:3ヶ月前予告/オフィス返し(貸主様指定業者あり)/鍵交換は貸主指定業者で賃借人様負担/保証会社:USEN/ガス:戸別専用メーター撤去済、賃借人様手配/水道:貸主にて検診し請求/電気:キュービクルなし、低圧 |
| 建物 | |
|---|---|
| 建物構造 | 鉄骨鉄筋コンクリート造 |
| 建物階建て |
地上9階 |
| 施工年月 | 1984(昭和59)年 02月 |
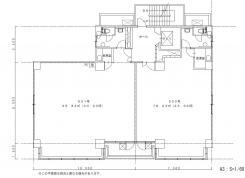
| 募集物件の階数 | 地上 5階 502号室 |
| 契約面積 | 78.21m2(23.66坪) |
| 用途地域 | 商業地域 |
| 設備 | |
|---|---|
| 水道 | 公営 |
| 下水道 | 公共下水 |
| ガス | 都市ガス |
| エレベータ | 有 |
| エアコン | 有り/個別 |
| トイレ | 有/専用 |
| 給湯室 | 有/専用 |
| キッチン | 有/専用 |
| ネット環境 | 無 |
| 床仕様 | OAフロア |
| セキュリティ | 無 |
| 利用時間 | 24時間 |
| シャッター | 無 |
| 照明設備 | 有 |
| 駐車場 | |
|---|---|
| 状 況 | 空有 |
| 駐車料金 | 15,400円(税込) |
| 空き台数 | 1台 |
| 取引情報 | |
|---|---|
| 取引態様 | 媒介 |
| 客付 | 可 |
この物件をチェックした人はこんな物件も見ています
- 天神西通りに面した物件です!

福岡県福岡市中央区天神2-5-17
158.35m2(47.90坪)
922,075円(税込)
- 地下鉄七熊線「天神南」駅徒歩3分の好立地物件です!

福岡県福岡市中央区春吉3-22
40.50m2(12.25坪)
363,825円(税込)
- 地下鉄七熊線「天神南」駅徒歩3分の好立地物件です!

福岡県福岡市中央区春吉3-22
56.53m2(17.10坪)
470,250円(税込)
- 地下鉄七熊線「天神南」駅徒歩3分の好立地物件です!

福岡県福岡市中央区春吉3-22
53.22m2(16.10坪)
442,750円(税込)
- 下大利駅徒歩4分!!敷地内駐車場複数台契約可!

福岡県大野城市東大利1-14-15
36.72m2(11.11坪)
88,000円(税込)
今日チェックした物件
お急ぎの方はお電話からお気軽にどうぞ!
092-716-5000 営業時間 / 10:00〜17:00 定休日 / 土曜・日曜・祝日


092-716-5000



















092-716-5000