情報更新日:2026年02月24日/広告有効期限:2026年05月18日
表示閲覧回数(過去30日間):24
お急ぎの方はお電話からお気軽にどうぞ!
092-716-5000 営業時間 / 10:00〜17:00 定休日 / 土曜・日曜・祝日
>物件詳細情報
| 基本情報 | |
|---|---|
| 物件番号 | 100079053055309829 |
| 店舗形態 | 店舗, 店舗(飲食店可) |
| オススメ業種 | 美容関係, 軽飲食, 重飲食, サービス業 |
| 物件名 | 大名一丁目店舗 |
| 物件の状態 | 空き |
| 引越し時期 | 即 |
| 契約形態と期間 |
普通契約期間:2年間 |
| 所在地・交通 | |
|---|---|
| 所在地 | 福岡県福岡市中央区大名1-9-15 |
| 交 通1 | 地下鉄空港線赤坂駅 徒歩5分 |
| 交 通2 | - |
| 賃料 | |
|---|---|
| 賃 料 | 330,000円(税込) |
| 敷 金 |
5ヶ月 |
| 精算方法 | 実費 |
| その他 | |
|---|---|
| 備考 | 分割不可/NG業種:民泊、風営法許可が必要な業種、韓国料理店/隣倉庫は44,000円(税込)で別途契約可/ |
| 建物 | |
|---|---|
| 建物構造 | 木造 |
| 建物階建て |
地上2階 |
| 施工年月 | 1984(昭和59)年 07月 |
| 募集物件の階数 | 地上 2階 |
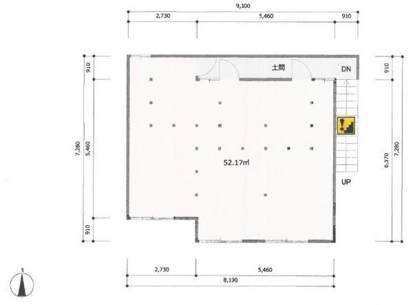
| 契約面積 | 49.81m2(15.07坪) |
| 用途地域 | 商業地域 |
| 設備 | |
|---|---|
| 水道 | 公営 |
| 下水道 | 公共下水 |
| ガス | 都市ガス |
| エレベータ | 無 |
| エアコン | 無 |
| トイレ | 無 |
| 給湯室 | 無 |
| キッチン | 無 |
| ネット環境 | 無 |
| 床仕様 | スケルトン |
| セキュリティ | 無 |
| 利用時間 | 24時間 |
| シャッター | 無 |
| 照明設備 | 無 |
| 内装業者指定 | 無 |
| 駐車場 | |
|---|---|
| 状 況 | 近隣 |
| 取引情報 | |
|---|---|
| 取引態様 | 媒介 |
| 客付 | 可 |
この物件をチェックした人はこんな物件も見ています
- 天神西通りに面した物件です!

福岡県福岡市中央区天神2-5-17
158.35m2(47.90坪)
922,075円(税込)
- メゾネット空間でスタイリッシュな業種にお勧めです。敷金も抑えられています。2F エアコンはサービス設置となります

福岡県福岡市中央区渡辺通4-1-24
46.16m2(13.96坪)
132,000円(税込)
- 角地で視認性の良い立地です!重飲食もご相談ください!

福岡県福岡市西区上山門1-1-20
79.28m2(23.98坪)
235,000円(税込)
- 業種等、ご相談ください

福岡県福岡市中央区大名1-9-15
49.81m2(15.07坪)
330,000円(税込)
- 共用駐車場併設の商業モールです。角地で視認性良好!!

福岡県福岡市西区北原1-9-7
229.50m2(69.42坪)
839,982円(税込)
今日チェックした物件
お急ぎの方はお電話からお気軽にどうぞ!
092-716-5000 営業時間 / 10:00〜17:00 定休日 / 土曜・日曜・祝日


092-716-5000



















092-716-5000