情報更新日:2026年04月06日/広告有効期限:なし
表示閲覧回数(過去30日間):37
お急ぎの方はお電話からお気軽にどうぞ!
092-716-5000 営業時間 / 10:00〜17:00 定休日 / 土曜・日曜・祝日
>物件詳細情報
| 基本情報 | |
|---|---|
| 物件番号 | 10007806897 |
| 店舗形態 | 路面店舗, 店舗, 事務所 |
| オススメ業種 | 医療関係, 事務所 |
| 物件名 | 重留店舗 |
| 物件の状態 | 空き |
| 引越し時期 | 相談 |
| 契約形態と期間 |
普通契約期間:2年間16,500円 |
| 所在地・交通 | |
|---|---|
| 所在地 | 福岡県福岡市早良区重留7-5-1 |
| 交 通1 | 西鉄バス早寿園前 徒歩1分 |
| 交 通2 | 地下鉄七隈線賀茂駅 徒歩27分 |
| 賃料 | |
|---|---|
| 賃 料 | 231,385円(税込) |
| 敷 金 |
6ヶ月 |
| 精算方法 | 実費 |
| その他 | |
|---|---|
| 備考 | スケルトン/用途地域:第一種低層住居専用地域/敷地内駐車場2台賃料に含む/ ガス引き込み相談可(要プロパン契約)/解約予告:3ヶ月/ 違約金:1年未満敷金30%2年未満敷金20%/ |
| 建物 | |
|---|---|
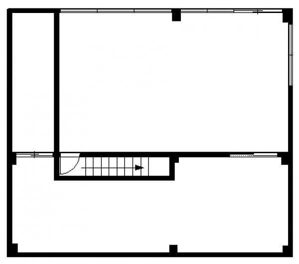
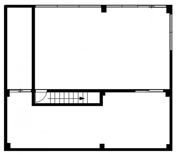
| 建物構造 | 鉄骨造 |
| 建物階建て |
地上3階 |
| 施工年月 | 1994(平成6)年 08月 |
| 募集物件の階数 | 地上 1階 1号室 |
| 契約面積 | 99.37m2(30.06坪) |
| 用途地域 | 1種低層 |
| 設備 | |
|---|---|
| 水道 | 公営 |
| 下水道 | 公共下水 |
| エレベータ | 無 |
| エアコン | 無 |
| トイレ | 無 |
| 給湯室 | 無 |
| キッチン | 無 |
| ネット環境 | 無 |
| 床仕様 | スケルトン |
| セキュリティ | 無 |
| 利用時間 | 24時間 |
| シャッター | 有/手動 |
| 照明設備 | 無 |
| 内装業者指定 | 無 |
| 駐車場 | |
|---|---|
| 状 況 | 空有無料 |
| 空き台数 | 2台 |
| 取引情報 | |
|---|---|
| 取引態様 | 専任 |
| 客付 | 可 |
この物件をチェックした人はこんな物件も見ています
- 天神西通りに面した物件です!

福岡県福岡市中央区天神2-5-17
158.35m2(47.90坪)
922,075円(税込)
- 天神西通り沿いの物件です

福岡県福岡市中央区大名2-6-10
45.16m2(13.66坪)
賃料未定
- 3階建て一棟貸し、平置き駐車場が確保できる為、本店・支店の移転先としてご検討いただけます。

福岡県糟屋郡志免町志免4-14-30
360.82m2(109.15坪)
968,000円(税込)
- 地下鉄七隈線「天神南」駅徒歩1分の好立地!事務所物件、リノベーション工事済みです!

福岡県福岡市中央区渡辺通5-23-2
37.74m2(11.42坪)
132,000円(税込)
- 大正通り沿いの新築オフィスビル!赤坂駅まで徒歩2分の好立地です!

福岡県福岡市中央区赤坂1-13-35
46.53m2(14.08坪)
301,802円(税込)
今日チェックした物件
お急ぎの方はお電話からお気軽にどうぞ!
092-716-5000 営業時間 / 10:00〜17:00 定休日 / 土曜・日曜・祝日


092-716-5000



















092-716-5000