情報更新日:2026年02月03日/広告有効期限:2026年05月31日
表示閲覧回数(過去30日間):28
お急ぎの方はお電話からお気軽にどうぞ!
092-716-5000 営業時間 / 10:00〜17:00 定休日 / 土曜・日曜・祝日
>物件詳細情報
| 基本情報 | |
|---|---|
| 物件番号 | 10007809429 |
| 店舗形態 | 事務所 |
| オススメ業種 | 事務所 |
| 物件名 | リアンプレミアム薬院ステーション |
| 物件の状態 | 入居中 |
| 引越し時期 | 2026(令和8)年03月上旬 |
| 契約形態と期間 |
普通契約期間:2年間 |
| 所在地・交通 | |
|---|---|
| 所在地 | 福岡県福岡市中央区薬院1-2-5 |
| 交 通1 | 西鉄天神大牟田線薬院駅 徒歩5分 |
| 交 通2 | - |
| 賃料 | |
|---|---|
| 賃 料 | 376,816円(税込) |
| 敷 金 |
8ヶ月 |
| 共益費・管理費 | 70,653円(税込) |
| その他月額費用 1 | 町内会費 1,000円(税込) |
| その他 | |
|---|---|
| 備考 | 火災保険加入必須(東洋警備保障(株))/契約期間内解約の場合、違約金有り(賃料 2 ヶ月分)/インフォメーションサイン代:16,500 円/更新事務手数料:22,000 円(税込)/事務所仕様(OA フロア 50mm、天井高さ 2,900mm) |
| 建物 | |
|---|---|
| 建物構造 | 鉄骨造 |
| 建物階建て |
地上8階 |
| 施工年月 | 2021(令和3)年 07月 |
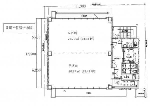
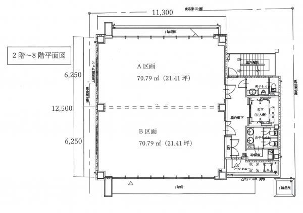
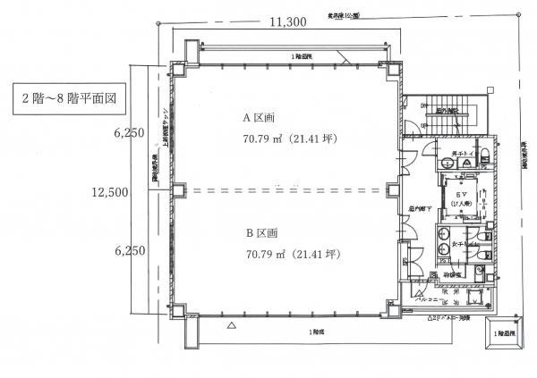
| 募集物件の階数 | 地上 6階 B号室 |
| 契約面積 | 70.79m2(21.41坪) |
| 用途地域 | 商業地域 |
| 設備 | |
|---|---|
| エレベータ | 有 |
| エアコン | 有り/個別 |
| トイレ | 有/共用 |
| 給湯室 | 有/共用 |
| ネット環境 | 無 |
| 床仕様 | タイルカーペット |
| セキュリティ | 機械警備 |
| シャッター | 無 |
| 照明設備 | 有 |
| 駐車場 | |
|---|---|
| 状 況 | 無し |
| 取引情報 | |
|---|---|
| 取引態様 | 媒介 |
| 客付 | 不可 |
この物件をチェックした人はこんな物件も見ています
- 天神西通りに面した物件です!

福岡県福岡市中央区天神2-5-17
158.35m2(47.90坪)
922,075円(税込)
- 昭和通り沿い、天神駅より徒歩3分の物件です!

福岡県福岡市中央区天神3-4-7
60.40m2(18.27坪)
281,358円(税込)
- 天神西通り沿いの物件です

福岡県福岡市中央区大名2-6-10
45.16m2(13.66坪)
賃料未定
- 地下鉄七隈線「天神南」駅徒歩1分の好立地!事務所物件、リノベーション工事済みです!

福岡県福岡市中央区渡辺通5-23-2
37.74m2(11.42坪)
132,000円(税込)
- 大正通り沿いの新築オフィスビル!赤坂駅まで徒歩2分の好立地です!

福岡県福岡市中央区赤坂1-13-35
46.53m2(14.08坪)
301,802円(税込)
今日チェックした物件
お急ぎの方はお電話からお気軽にどうぞ!
092-716-5000 営業時間 / 10:00〜17:00 定休日 / 土曜・日曜・祝日


092-716-5000



















092-716-5000