情報更新日:2024年05月17日/広告有効期限:なし
表示閲覧回数(過去30日間):28
お急ぎの方はお電話からお気軽にどうぞ!
092-716-5000 営業時間 / 10:00〜17:00 定休日 / 土曜・日曜・祝日
>物件詳細情報
| 基本情報 | |
|---|---|
| 物件番号 | 10007811065 |
| 店舗形態 | 店舗 |
| オススメ業種 | 物販関係, サービス業 |
| 物件名 | レイズ桜並木 |
| 物件の状態 | 空き |
| 引越し時期 | 相談 |
| 契約形態と期間 |
普通契約期間:2年間 |
| 所在地・交通 | |
|---|---|
| 所在地 | 福岡県福岡市博多区春町3-5-以下未定 |
| 交 通1 | 西鉄天神大牟田線雑餉隈駅 徒歩12分 |
| 交 通2 | 西鉄天神大牟田線春日原駅 徒歩13分 |
| 賃料 | |
|---|---|
| 賃 料 | 156,750円(税込) |
| 敷 金 |
6ヶ月 |
| 礼 金 | 1ヶ月 |
| その他 | |
|---|---|
| 備考 | 共益費(※相談)/スケルトン/平置き駐車場有/保証会社指定有/ |
| 建物 | |
|---|---|
| 建物構造 | 木造 |
| 建物階建て |
地上2階 |
| 施工年月 | 2023(令和5)年 05月 |
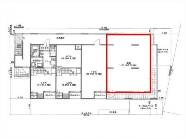
| 募集物件の階数 | 地上 1階 |
| 契約面積 | 47.14m2(14.26坪) |
| 用途地域 | 1種住居 |
| 設備 | |
|---|---|
| エレベータ | 無 |
| エアコン | 無 |
| トイレ | 無 |
| 給湯室 | 無 |
| キッチン | 無 |
| ネット環境 | 無 |
| 床仕様 | スケルトン |
| セキュリティ | 無 |
| シャッター | 無 |
| 照明設備 | 無 |
| 駐車場 | |
|---|---|
| 状 況 | 空有 |
| 取引情報 | |
|---|---|
| 取引態様 | 媒介 |
| 客付 | 不可 |
この物件をチェックした人はこんな物件も見ています
- 天神西通りに面した物件です!

福岡県福岡市中央区天神2-5-17
158.35m2(47.90坪)
922,075円(税込)
- 駐車場は店舗前面と裏手に9台確保可能です!業種、ご相談ください。

福岡県福岡市東区唐原7-5-17
122.30m2(37.00坪)
406,890円(税込)
- JR&地下鉄 博多駅まで徒歩7分!

福岡県福岡市博多区博多駅東2-6-24
80.83m2(24.45坪)
376,530円(税込)
- オーナー負担にてスケルトン渡し相談可!

福岡県福岡市博多区銀天町3-5-15
102.88m2(31.12坪)
132,000円(税込)
- 地下鉄箱崎線「呉服町」駅徒歩1分!環境配慮型、設備充実の築浅オフィスビルです。

福岡県福岡市博多区綱場町7-1
88.14m2(26.66坪)
483,879円(税込)
今日チェックした物件
お急ぎの方はお電話からお気軽にどうぞ!
092-716-5000 営業時間 / 10:00〜17:00 定休日 / 土曜・日曜・祝日


092-716-5000












092-716-5000