情報更新日:2026年01月15日/広告有効期限:2026年02月15日
表示閲覧回数(過去30日間):77
お急ぎの方はお電話からお気軽にどうぞ!
092-716-5000 営業時間 / 10:00〜17:00 定休日 / 土曜・日曜・祝日
>物件詳細情報
| 基本情報 | |
|---|---|
| 物件番号 | 100079053055309591 |
| 店舗形態 | 事務所, 店舗(飲食店可), 路面店舗, 倉庫 |
| オススメ業種 | 軽飲食, サービス業, 物販関係, 塾・学校・教育関係 |
| 物件名 | エトワール7 |
| 物件の状態 | 空き |
| 引越し時期 | 相談 |
| 契約形態と期間 |
定期契約期間:5年間再契約:可 |
| 所在地・交通 | |
|---|---|
| 所在地 | 福岡県福岡市東区唐原7-5-17 |
| 交 通1 | JR鹿児島本線九産大前駅 徒歩9分 |
| 交 通2 | - |
| 賃料 | |
|---|---|
| 賃 料 | 406,890円(税込) |
| 敷 金 |
8ヶ月 |
| 精算方法 | 実費 |
| その他 | |
|---|---|
| 備考 | スケルトン渡し/解約予告:3ヵ月前/保証会社指定有:フォーシーズ/NG業種:幼稚園、放課後ディサービス系、重飲食、上階住居に迷惑のかかる業種/ |
| 建物 | |
|---|---|
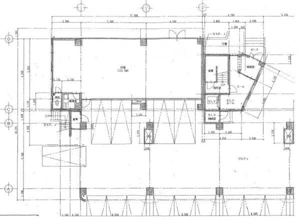
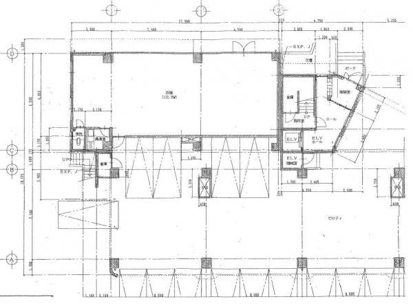
| 建物構造 | 鉄筋コンクリート造 |
| 建物階建て |
地上5階 |
| 施工年月 | 1997(平成9)年 01月 |
| 募集物件の階数 | 地上 1階 |
| 契約面積 | 122.30m2(37.00坪) |
| 用途地域 | 1種住居 |
| 設備 | |
|---|---|
| 水道 | 公営 |
| 下水道 | 公共下水 |
| ガス | LPG |
| エレベータ | 無 |
| エアコン | 無 |
| トイレ | 無 |
| 給湯室 | 無 |
| キッチン | 無 |
| ネット環境 | 無 |
| 床仕様 | スケルトン |
| セキュリティ | 無 |
| 利用時間 | 24時間 |
| シャッター | 無 |
| 照明設備 | 無 |
| 内装業者指定 | 無 |
| 駐車場 | |
|---|---|
| 状 況 | 空有無料 |
| 取引情報 | |
|---|---|
| 取引態様 | 専任 |
| 客付 | 可 |
この物件をチェックした人はこんな物件も見ています
- 天神西通りに面した物件です!

福岡県福岡市中央区天神2-5-17
158.35m2(47.90坪)
922,075円(税込)
- 室見駅にも徒歩圏内、閑静な住宅街にある物件です!

福岡県福岡市早良区南庄1-18-10
130.66m2(39.52坪)
132,000円(税込)
- 志免に一棟貸物件が出ました!1階店舗、2階住居仕様です。

福岡県糟屋郡志免町志免2-3-6
529.80m2(160.26坪)
770,000円(税込)
- 地下鉄七熊線の渡辺通駅から徒歩4分に位置する店舗物件です!

福岡県福岡市中央区渡辺通2-3-24
144.48m2(43.71坪)
913,000円(税込)
- 地下鉄空港線赤坂駅徒歩6分!国体道路と大正通りの交差点すぐ、利便性の良い物件です!駐車場も取れます!

福岡県福岡市中央区赤坂1-1-5
99.81m2(30.19坪)
398,640円(税込)
今日チェックした物件
お急ぎの方はお電話からお気軽にどうぞ!
092-716-5000 営業時間 / 10:00〜17:00 定休日 / 土曜・日曜・祝日


092-716-5000














092-716-5000