情報更新日:2025年10月24日/広告有効期限:なし
表示閲覧回数(過去30日間):48
お急ぎの方はお電話からお気軽にどうぞ!
092-716-5000 営業時間 / 10:00〜17:00 定休日 / 土曜・日曜・祝日
>物件詳細情報
| 基本情報 | |
|---|---|
| 物件番号 | 10007811348 |
| 店舗形態 | 店舗(飲食店可), 店舗, 事務所, 倉庫 |
| オススメ業種 | 塾・学校・教育関係, 物販関係, 軽飲食, サービス業 |
| 物件名 | エム・スクエア |
| 物件の状態 | 空き |
| 引越し時期 | 相談 |
| 契約形態と期間 |
普通契約期間:2年間16,500円 |
| 所在地・交通 | |
|---|---|
| 所在地 | 福岡県福岡市西区今宿2-5-4 |
| 交 通1 | JR筑肥線今宿駅 徒歩9分 |
| 交 通2 | 昭和バス今宿横町 徒歩1分 |
| 賃料 | |
|---|---|
| 賃 料 | 131,736円(税込) |
| 敷 金 |
6ヶ月 |
| 精算方法 | 実費 |
| その他 | |
|---|---|
| 備考 | 現状渡し(店舗仕様:床壁天井のみ)/軽飲食相談可/重飲食要相談/ NG:風営法許可が必要な業種・ガールズバー・カラオケ設置・託児所・デイサービス系(業種被りのため要相談)・美容室(業種被りのため要相談)/ 解約予告:3ヶ月/違約金:1年未満敷金30%2年未満敷金20%/ 看板:敷地内1区画は無料※追加1区画につき月額2,000円+税 |
| 建物 | |
|---|---|
| 建物構造 | 鉄骨造 |
| 建物階建て |
地上2階 |
| 施工年月 | 1998(平成10)年 04月 |
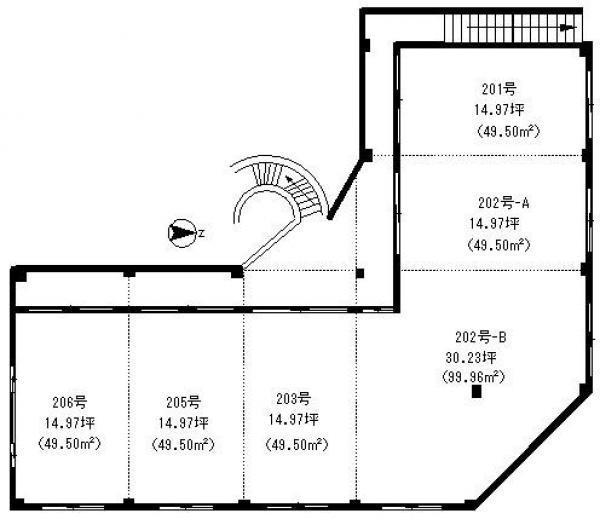
| 募集物件の階数 | 地上 2階 205号室 |
| 契約面積 | 49.50m2(14.97坪) |
| 用途地域 | 1種住居 |
| 設備 | |
|---|---|
| 水道 | 公営 |
| 下水道 | 公共下水 |
| ガス | LPG |
| エレベータ | 無 |
| エアコン | 無 |
| トイレ | 有/共用 |
| 給湯室 | 無 |
| キッチン | 無 |
| ネット環境 | 無 |
| 床仕様 | CFシート |
| セキュリティ | 無 |
| 利用時間 | 24時間 |
| シャッター | 有/手動 |
| 照明設備 | 無 |
| 内装業者指定 | 有 |
| 駐車場 | |
|---|---|
| 状 況 | 空無 |
| 取引情報 | |
|---|---|
| 取引態様 | 専任 |
| 客付 | 可 |
この物件をチェックした人はこんな物件も見ています
- 天神西通りに面した物件です!

福岡県福岡市中央区天神2-5-17
158.35m2(47.90坪)
922,075円(税込)
- 天神西通り沿いの物件です

福岡県福岡市中央区大名2-6-10
45.16m2(13.66坪)
賃料未定
- 昭和通り沿い、天神駅より徒歩3分の物件です!

福岡県福岡市中央区天神3-4-7
60.40m2(18.27坪)
281,358円(税込)
- 地下鉄七隈線「天神南」駅徒歩1分の好立地!事務所物件、リノベーション工事済みです!

福岡県福岡市中央区渡辺通5-23-2
37.74m2(11.42坪)
132,000円(税込)
- 大正通り沿いの新築オフィスビル!赤坂駅まで徒歩2分の好立地です!

福岡県福岡市中央区赤坂1-13-35
46.53m2(14.08坪)
301,802円(税込)
今日チェックした物件
お急ぎの方はお電話からお気軽にどうぞ!
092-716-5000 営業時間 / 10:00〜17:00 定休日 / 土曜・日曜・祝日


092-716-5000


















092-716-5000