情報更新日:2026年04月22日/広告有効期限:なし
表示閲覧回数(過去30日間):70
お急ぎの方はお電話からお気軽にどうぞ!
092-716-5000 営業時間 / 10:00〜17:00 定休日 / 土曜・日曜・祝日
>物件詳細情報
| 基本情報 | |
|---|---|
| 物件番号 | 10007811657 |
| 店舗形態 | 路面店舗, 店舗, 店舗(飲食店可) |
| オススメ業種 | 塾・学校・教育関係, 美容関係, 物販関係, サービス業 |
| 物件名 | 有川時計材料店店舗 |
| 物件の状態 | 入居中 |
| 引越し時期 | 相談 |
| 契約形態と期間 |
定期契約期間:3年間再契約:不可 |
| 所在地・交通 | |
|---|---|
| 所在地 | 福岡県福岡市中央区舞鶴2-7-15 |
| 交 通1 | 地下鉄空港線赤坂駅 徒歩5分 |
| 交 通2 | - |
| 賃料 | |
|---|---|
| 賃 料 | 198,000円(税込) |
| 敷 金 |
6ヶ月 |
| 精算方法 | 実費 |
| その他 | |
|---|---|
| 備考 | 定期借家契約3年(契約期間相談可)/フリーレントキャンペーン(1カ月)/現状渡し/業種:飲食相談可(カフェなど。アルコール提供不可) /利用時間:7:00~24:00/残置物:エアコン・トイレ・照明/ |
| 建物 | |
|---|---|
| 建物構造 | 鉄骨造 |
| 建物階建て |
地上3階 |
| 施工年月 | 1991(平成3)年 02月 |
| 募集物件の階数 | 地上 1階 2号室 |
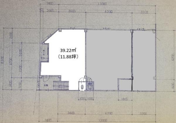
| 契約面積 | 39.22m2(11.86坪) |
| 用途地域 | 商業地域 |
| 設備 | |
|---|---|
| 水道 | 公営 |
| 下水道 | 公共下水 |
| エレベータ | 無 |
| エアコン | 無 |
| トイレ | 無 |
| 給湯室 | 無 |
| セキュリティ | 無 |
| 利用時間 | 時間制限有 |
| シャッター | 有/手動 |
| 照明設備 | 無 |
| 内装業者指定 | 無 |
| 駐車場 | |
|---|---|
| 状 況 | 無し |
| 取引情報 | |
|---|---|
| 取引態様 | 専任 |
| 客付 | 可 |
この物件をチェックした人はこんな物件も見ています
- 天神西通りに面した物件です!

福岡県福岡市中央区天神2-5-17
158.35m2(47.90坪)
922,075円(税込)
- 昭和通り沿い、天神駅より徒歩3分の物件です!

福岡県福岡市中央区天神3-4-7
60.40m2(18.27坪)
281,358円(税込)
- JR鹿児島本線「博多」駅徒歩10分!屋上看板設置可のオフィス物件です!

福岡県福岡市博多区博多駅前4-37-2
73.06m2(22.10坪)
332,200円(税込)
- 前面平置き駐車場5台分込み!教室仕様の居抜きです。室内画像にあるオフィス家具などは撤去予定です(居抜きについては条件調整中につき、変動する可能性があります)。

福岡県福岡市南区塩原3-2-15
154.80m2(46.83坪)
696,300円(税込)
- 駐車場は店舗前面と裏手に9台確保可能です!業種、ご相談ください。

福岡県福岡市東区唐原7-5-17
122.30m2(37.00坪)
406,890円(税込)
今日チェックした物件
お急ぎの方はお電話からお気軽にどうぞ!
092-716-5000 営業時間 / 10:00〜17:00 定休日 / 土曜・日曜・祝日


092-716-5000



















092-716-5000