情報更新日:2025年11月17日/広告有効期限:2026年01月14日
表示閲覧回数(過去30日間):107
お急ぎの方はお電話からお気軽にどうぞ!
092-716-5000 営業時間 / 10:00〜17:00 定休日 / 土曜・日曜・祝日
>物件詳細情報
| 基本情報 | |
|---|---|
| 物件番号 | 10007812153 |
| 店舗形態 | 路面店舗, 店舗(リース店舗), 店舗 |
| オススメ業種 | 美容関係, 物販関係, サービス業, ショールーム |
| 物件名 | 蔵田ホールディングスビル |
| 物件の状態 | 空き |
| 引越し時期 | 即 |
| 契約形態と期間 |
普通契約期間:2年間 |
| 所在地・交通 | |
|---|---|
| 所在地 | 福岡県福岡市南区那の川2-1-16 |
| 交 通1 | 西鉄天神大牟田線西鉄平尾駅 徒歩9分 |
| 交 通2 | - |
| 賃料 | |
|---|---|
| 賃 料 | 504,900円(税込) |
| 敷 金 |
10ヶ月 |
| 精算方法 | 実費 |
| その他 | |
|---|---|
| 備考 | スケルトン渡し/駐車場2台契約必須:48,400円(税込)/飲食:要相談/ |
| 建物 | |
|---|---|
| 建物構造 | 鉄筋コンクリート造 |
| 建物階建て |
地上11階 |
| 施工年月 | 2024(令和6)年 03月 |
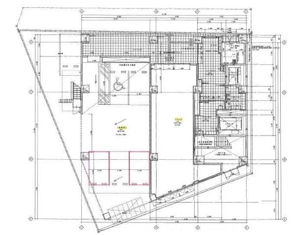
| 募集物件の階数 | 地上 1階 |
| 契約面積 | 89.35m2(27.03坪) |
| 用途地域 | 商業地域 |
| 設備 | |
|---|---|
| 水道 | 公営 |
| 下水道 | 公共下水 |
| エレベータ | 無 |
| エアコン | 無 |
| トイレ | 無 |
| 給湯室 | 無 |
| キッチン | 無 |
| ネット環境 | 無 |
| 床仕様 | スケルトン |
| セキュリティ | 無 |
| 利用時間 | 時間制限有 |
| シャッター | 無 |
| 照明設備 | 無 |
| 内装業者指定 | 無 |
| 駐車場 | |
|---|---|
| 状 況 | 空有 |
| 駐車料金 | 48,400円(税込) |
| 空き台数 | 2台 |
| 取引情報 | |
|---|---|
| 取引態様 | 媒介 |
| 客付 | 可 |
この物件をチェックした人はこんな物件も見ています
- 天神西通りに面した物件です!

福岡県福岡市中央区天神2-5-17
158.35m2(47.90坪)
922,075円(税込)
- 天神西通り沿いの物件です

福岡県福岡市中央区大名2-6-10
45.19m2(13.67坪)
270,666円(税込)
- 博多駅前の人気物件に募集がでました。業種についてはお気軽にお問合せください。

福岡県福岡市博多区博多駅前3-9-5
34.65m2(10.48坪)
99,000円(税込)
- アイランドシティ内オフィスビル!開業に適しています!

福岡県福岡市東区香椎照葉3-2-1
46.17m2(13.97坪)
130,526円(税込)
- 賃料見直しました!西鉄大牟田線朝倉街道駅とJR鹿児島本線天拝山駅のダブルアクセス!101、102、103号、一括貸しもご相談可能です!

福岡県筑紫野市石崎1-6-5
63.91m2(19.33坪)
102,000円(税込)
今日チェックした物件
お急ぎの方はお電話からお気軽にどうぞ!
092-716-5000 営業時間 / 10:00〜17:00 定休日 / 土曜・日曜・祝日


092-716-5000



















092-716-5000