情報更新日:2025年12月02日/広告有効期限:2026年03月31日
表示閲覧回数(過去30日間):19
お急ぎの方はお電話からお気軽にどうぞ!
092-716-5000 営業時間 / 10:00〜17:00 定休日 / 土曜・日曜・祝日
>物件詳細情報
| 基本情報 | |
|---|---|
| 物件番号 | 10007812171 |
| 店舗形態 | 事務所 |
| オススメ業種 | 事務所 |
| 物件名 | VORT福岡大名(DAIMYO631) |
| 物件の状態 | 空き |
| 引越し時期 | 相談 |
| 契約形態と期間 |
普通契約期間:2年間更新料:1ヶ月 |
| 所在地・交通 | |
|---|---|
| 所在地 | 福岡県福岡市中央区大名1-3-8 |
| 交 通1 | 地下鉄空港線赤坂駅 徒歩8分 |
| 交 通2 | 西鉄天神大牟田線西鉄福岡(天神)駅 徒歩8分 |
| 賃料 | |
|---|---|
| 賃 料 | 756,360円(税込) |
| 敷 金 |
8ヶ月 |
| その他月額費用 1 | 看板使用料 12,100円(税込) |
| 精算方法 | 実費 |
| その他 | |
|---|---|
| 備考 | 普通借2年/用途:事務所(確認申請用途)※事務所以外の業種も相談可/看板料:11,000円(税込)※南西側 壁面看板:5,000円(税別)/月、南東側壁面看板:5,000円(税別)/月、3階バルコニー使用料:3,000円(税別)/月/看板作成料:実費負担(要見積)/違約金:なし/事業ゴミ回収:個別契約(公材) ふくおか環境財団※ビル設備である既存のトイレ、給湯設備、空調設備を仕様変更する場合は建物管理組合への別途追加預託が必要/更新料:なし/スケルトン渡し(設備を除く)→スケルトン還し(設備を除く) |
| 建物 | |
|---|---|
| 建物構造 | 鉄骨造 |
| 建物階建て |
地上5階 |
| 施工年月 | 2020(令和2)年 04月 |
| 募集物件の階数 | 地上 3階 |
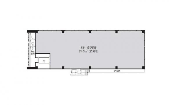
| 契約面積 | 151.54m2(45.84坪) |
| 設備 | |
|---|---|
| エレベータ | 有 |
| 駐車場 | |
|---|---|
| 状 況 | 無し |
| 取引情報 | |
|---|---|
| 取引態様 | 媒介 |
| 客付 | 不可 |
この物件をチェックした人はこんな物件も見ています
- 天神西通りに面した物件です!

福岡県福岡市中央区天神2-5-17
158.35m2(47.90坪)
922,075円(税込)
- 駐車場は店舗前面と裏手に9台確保可能です!業種、ご相談ください。

福岡県福岡市東区唐原7-5-17
122.30m2(37.00坪)
406,890円(税込)
- JR&地下鉄 博多駅まで徒歩7分!

福岡県福岡市博多区博多駅東2-6-24
80.83m2(24.45坪)
376,530円(税込)
- オーナー負担にてスケルトン渡し相談可!

福岡県福岡市博多区銀天町3-5-15
102.88m2(31.12坪)
132,000円(税込)
- 地下鉄箱崎線「呉服町」駅徒歩1分!環境配慮型、設備充実の築浅オフィスビルです。

福岡県福岡市博多区綱場町7-1
88.14m2(26.66坪)
483,879円(税込)
今日チェックした物件
お急ぎの方はお電話からお気軽にどうぞ!
092-716-5000 営業時間 / 10:00〜17:00 定休日 / 土曜・日曜・祝日


092-716-5000













092-716-5000