情報更新日:2025年09月24日/広告有効期限:2026年02月28日
表示閲覧回数(過去30日間):28
お急ぎの方はお電話からお気軽にどうぞ!
092-716-5000 営業時間 / 10:00〜17:00 定休日 / 土曜・日曜・祝日
>物件詳細情報
| 基本情報 | |
|---|---|
| 物件番号 | 10007812230 |
| 店舗形態 | 事務所, 店舗 |
| オススメ業種 | 事務所, サービス業 |
| 物件名 | TOMIKE TAKASAGO |
| 物件の状態 | 空き |
| 引越し時期 | 相談 |
| 契約形態と期間 |
普通契約期間:2年間 |
| 所在地・交通 | |
|---|---|
| 所在地 | 福岡県福岡市中央区高砂2-14-3 |
| 交 通1 | 西鉄天神大牟田線西鉄平尾駅 徒歩9分 |
| 交 通2 | - |
| 賃料 | |
|---|---|
| 賃 料 | 345,840円(税込) |
| 敷 金 |
4ヶ月 |
| 共益費・管理費 | 5,500円(税込) |
| 精算方法 | 実費 |
| 礼 金 | 1ヶ月 |
| その他 | |
|---|---|
| 備考 | ジェイリース株式会社初回100%(月額賃料等)J-AKINAI 初回保証料100%(月(以下省略)/家賃保証・保証費用等加入要/保険:加入義務有(テナント側で加入)/その他一時金:テナント名入れ代44,000円、テナント名入れは弊社指定業者で指定箇所(テナント名を入れる看板)/駐輪場無、敷地内駐輪禁止、ゴミ置き場無(各自事業用の要契約)/貸室内の24時間換気扇、消火器、網戸がある場合はサービス設置/水町費実費/鍵交換は3ヶ所のため59,400円税込/保険はテナント側で加入(賠償責任特約付きの保険)/本物件並びに本物件敷地内は、健康増進法一部改正により全面禁煙(加熱式煙草も含む)/TV回線のみパイプスペース |
| 建物 | |
|---|---|
| 建物構造 | 鉄筋コンクリート造 |
| 建物階建て |
地上3階 |
| 施工年月 | 2024(令和6)年 10月 |
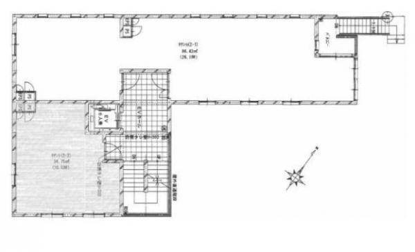
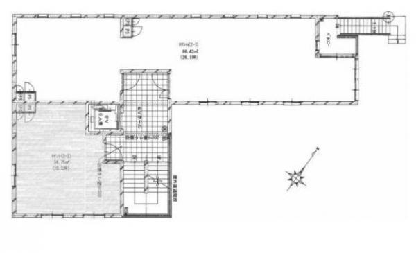
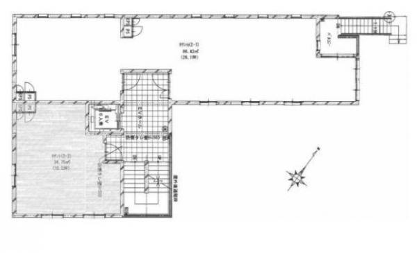
| 募集物件の階数 | 地上 1階 101号室 |
| 契約面積 | 64.96m2(19.65坪) |
| 設備 | |
|---|---|
| エレベータ | 有 |
| 駐車場 | |
|---|---|
| 状 況 | 無し |
| 取引情報 | |
|---|---|
| 取引態様 | 媒介 |
| 客付 | 不可 |
この物件をチェックした人はこんな物件も見ています
- 赤坂けやき通り沿いです!

福岡県福岡市中央区赤坂2-3-13
361.32m2(109.30坪)
961,928円(税込)
- 天神西通りに面した物件です!

福岡県福岡市中央区天神2-5-17
158.35m2(47.90坪)
922,075円(税込)
- 平尾駅近くの1階居抜き店舗です!業種ご相談ください!

福岡県福岡市南区大楠2-19-4
50.40m2(15.25坪)
99,000円(税込)
- JR南福岡駅、徒歩1分の新築物件です!業種ご相談ください。

福岡県福岡市博多区寿町2-4-30.31
43.19m2(13.06坪)
187,000円(税込)
- JR南福岡駅、徒歩1分の新築物件です!業種ご相談ください。

福岡県福岡市博多区寿町2-4-30.31
68.17m2(20.62坪)
248,600円(税込)
今日チェックした物件
お急ぎの方はお電話からお気軽にどうぞ!
092-716-5000 営業時間 / 10:00〜17:00 定休日 / 土曜・日曜・祝日


092-716-5000













092-716-5000