情報更新日:2026年03月30日/広告有効期限:2026年06月30日
表示閲覧回数(過去30日間):20
お急ぎの方はお電話からお気軽にどうぞ!
092-716-5000 営業時間 / 10:00〜17:00 定休日 / 土曜・日曜・祝日
>物件詳細情報
| 基本情報 | |
|---|---|
| 物件番号 | 10007905093 |
| 店舗形態 | 事務所 |
| オススメ業種 | 事務所 |
| 物件名 | セントベーネビル |
| 物件の状態 | 空き |
| 引越し時期 | 相談 |
| 契約形態と期間 |
定期再契約:不可 期限付き2027(令和9)年06月 |
| 所在地・交通 | |
|---|---|
| 所在地 | 福岡県福岡市中央区大名1-9-52 |
| 交 通1 | 地下鉄空港線赤坂駅 徒歩5分 |
| 交 通2 | 西鉄天神大牟田線西鉄福岡(天神)駅 徒歩10分 |
| 賃料 | |
|---|---|
| 賃 料 | 522,951円(税込) |
| 敷 金 |
3ヶ月 |
| その他月額費用 1 | 警備料 7,700円(税込) |
| その他月額費用 2 | 看板使用料 3,300円(税込) |
| 精算方法 | 実費 |
| その他 | |
|---|---|
| 備考 | 接待業種:不可/短期解約:1年未満解約で2ヶ月の違約金/看板作成料55,000円(初回のみ)/事業ゴミ回収:個別契約㈲福博清掃/電気料・水道料:管理会社検針による請求/駐車場有(要相談)/現状渡し→現状還し |
| 建物 | |
|---|---|
| 建物構造 | 鉄骨造 |
| 建物階建て |
地上7階 |
| 施工年月 | 1992(平成4)年 03月 |
| 募集物件の階数 | 地上 5階 |
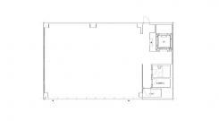
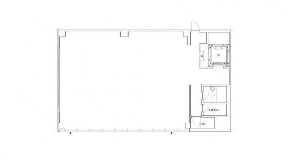
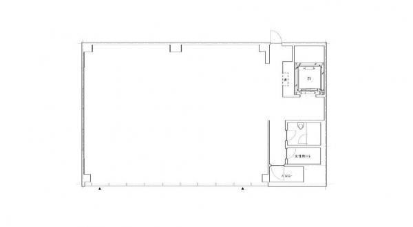
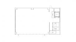
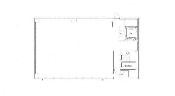
| 契約面積 | 120.89m2(36.57坪) |
| 設備 | |
|---|---|
| エレベータ | 有 |
| 駐車場 | |
|---|---|
| 状 況 | 空有 |
| 取引情報 | |
|---|---|
| 取引態様 | 媒介 |
| 客付 | 不可 |
この物件をチェックした人はこんな物件も見ています
- 天神西通りに面した物件です!

福岡県福岡市中央区天神2-5-17
158.35m2(47.90坪)
922,075円(税込)
- 昭和通り沿い、天神駅より徒歩3分の物件です!

福岡県福岡市中央区天神3-4-7
60.40m2(18.27坪)
281,358円(税込)
- 天神西通り沿いの物件です

福岡県福岡市中央区大名2-6-10
45.16m2(13.66坪)
賃料未定
- 地下鉄七隈線「天神南」駅徒歩1分の好立地!事務所物件、リノベーション工事済みです!

福岡県福岡市中央区渡辺通5-23-2
37.74m2(11.42坪)
132,000円(税込)
- 大正通り沿いの新築オフィスビル!赤坂駅まで徒歩2分の好立地です!

福岡県福岡市中央区赤坂1-13-35
46.53m2(14.08坪)
301,802円(税込)
今日チェックした物件
お急ぎの方はお電話からお気軽にどうぞ!
092-716-5000 営業時間 / 10:00〜17:00 定休日 / 土曜・日曜・祝日


092-716-5000













092-716-5000