情報更新日:2025年10月02日/広告有効期限:なし
表示閲覧回数(過去30日間):74
お急ぎの方はお電話からお気軽にどうぞ!
092-716-5000 営業時間 / 10:00〜17:00 定休日 / 土曜・日曜・祝日
>物件詳細情報
| 基本情報 | |
|---|---|
| 物件番号 | 10007905198 | 
| 店舗形態 | 路面店舗, 店舗 | 
| オススメ業種 | 物販関係, 美容関係, 塾・学校・教育関係, サービス業 | 
| 物件名 | アクシオン高宮駅前グラシア | 
| 物件の状態 | 建設中 | 
| 引越し時期 | 相談 | 
| 契約形態と期間 | 普通契約期間:2年間 | 
| 所在地・交通 | |
|---|---|
| 所在地 | 福岡県福岡市南区玉川町13番以下未定 | 
| 交 通1 | 西鉄天神大牟田線高宮駅 徒歩4分 | 
| 交 通2 | - | 
| 賃料 | |
|---|---|
| 賃 料 | 509,949円(税込) | 
| 敷 金 | 6ヶ月 | 
| 精算方法 | 実費 | 
| その他 | |
|---|---|
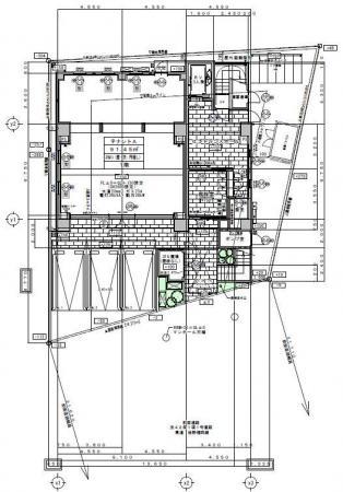
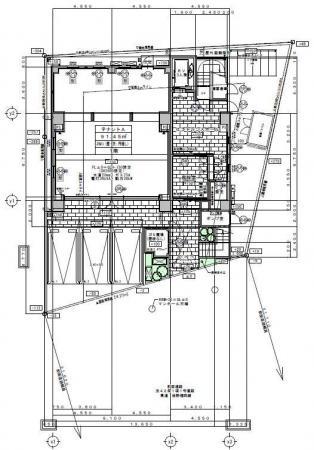
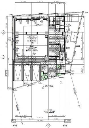
| 備考 | 2026年2月完成予定/天井・壁はプラスターボード、床は土間コンクリート/平置き駐車場1台 18,700円(税込)/保証会社指定有(ニッポンインシュア)/NG業種:飲食、風営法許可が必要な業種/ | 
| 建物 | |
|---|---|
| 建物構造 | 鉄筋コンクリート造 | 
| 建物階建て | 地上10階 | 
| 施工年月 | 2026(令和8)年 02月 | 
| 募集物件の階数 | 地上 1階 | 
| 契約面積 | 90.14m2(27.27坪) | 
| 用途地域 | 近商地域 | 
| 設備 | |
|---|---|
| 水道 | 公営 | 
| 下水道 | 公共下水 | 
| ガス | LPG | 
| エレベータ | 有 | 
| エアコン | 無 | 
| トイレ | 無 | 
| 給湯室 | 無 | 
| キッチン | 無 | 
| セキュリティ | 無 | 
| シャッター | 有/手動 | 
| 照明設備 | 無 | 
| 内装業者指定 | 無 | 
| 駐車場 | |
|---|---|
| 状 況 | 空有 | 
| 駐車料金 | 18,700円(税込) | 
| 空き台数 | 1台 | 
| 取引情報 | |
|---|---|
| 取引態様 | 専任 | 
| 客付 | 可 | 
この物件をチェックした人はこんな物件も見ています
- 赤坂けやき通り沿いです!
 
 福岡県福岡市中央区赤坂2-3-13
  361.32m2(109.30坪) 361.32m2(109.30坪)
  961,928円(税込) 961,928円(税込)
- 天神西通りに面した物件です!
 
 福岡県福岡市中央区天神2-5-17
  158.35m2(47.90坪) 158.35m2(47.90坪)
  922,075円(税込) 922,075円(税込)
- 2025年12月竣工予定、大正通り沿いの新築オフィスビル!赤坂駅まで徒歩2分の好立地です!
 
 福岡県福岡市中央区赤坂1-13-35
  47.77m2(14.45坪) 47.77m2(14.45坪)
  309,953円(税込) 309,953円(税込)
- 2025年12月竣工予定、大正通り沿いの新築オフィスビル!赤坂駅まで徒歩2分の好立地です!
 
 福岡県福岡市中央区赤坂1-13-35
  48.20m2(14.58坪) 48.20m2(14.58坪)
  312,741円(税込) 312,741円(税込)
- 2025年12月竣工予定、大正通り沿いの新築オフィスビル!赤坂駅まで徒歩2分の好立地です!
 
 福岡県福岡市中央区赤坂1-13-35
  46.53m2(14.08坪) 46.53m2(14.08坪)
  301,802円(税込) 301,802円(税込)
今日チェックした物件
お急ぎの方はお電話からお気軽にどうぞ!
092-716-5000 営業時間 / 10:00〜17:00 定休日 / 土曜・日曜・祝日


 092-716-5000
092-716-5000






 
        
        
        
 
      

 
          




 092-716-5000
092-716-5000