情報更新日:2025年11月04日/広告有効期限:2026年01月15日
表示閲覧回数(過去30日間):42
お急ぎの方はお電話からお気軽にどうぞ!
092-716-5000 営業時間 / 10:00〜17:00 定休日 / 土曜・日曜・祝日
>物件詳細情報
| 基本情報 | |
|---|---|
| 物件番号 | 100079052982 |
| 店舗形態 | 路面店舗, 店舗(飲食店可), 店舗 |
| オススメ業種 | 軽飲食, 重飲食, 塾・学校・教育関係, サービス業 |
| 物件名 | ヒラメック西新第2ビル |
| 物件の状態 | 空き |
| 引越し時期 | 相談 |
| 契約形態と期間 |
定期契約期間:10年間再契約:不可 |
| 所在地・交通 | |
|---|---|
| 所在地 | 福岡県福岡市早良区西新4-7-24 |
| 交 通1 | 地下鉄空港線西新駅 徒歩3分 |
| 交 通2 | - |
| 賃料 | |
|---|---|
| 賃 料 | 1,020,800円(税込) |
| 敷 金 |
6ヶ月 |
| 精算方法 | 実費 |
| その他 | |
|---|---|
| 備考 | 定期借家契約10年(終了型)/スケルトン渡し/ |
| 建物 | |
|---|---|
| 建物構造 | 鉄筋コンクリート造 |
| 建物階建て |
地上3階 |
| 施工年月 | 1968(昭和43)年 03月 |
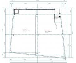
| 募集物件の階数 | 地上 1階 AB号室 |
| 契約面積 | 190.02m2(57.48坪) |
| 用途地域 | 商業地域 |
| 設備 | |
|---|---|
| 水道 | 公営 |
| 下水道 | 公共下水 |
| エレベータ | 無 |
| エアコン | 有り/個別 |
| トイレ | 無 |
| 給湯室 | 無 |
| キッチン | 無 |
| 床仕様 | スケルトン |
| 利用時間 | 24時間 |
| シャッター | 有/手動 |
| 照明設備 | 無 |
| 内装業者指定 | 無 |
| 駐車場 | |
|---|---|
| 状 況 | 無し |
| 取引情報 | |
|---|---|
| 取引態様 | 媒介 |
| 客付 | 可 |
この物件をチェックした人はこんな物件も見ています
- 天神西通りに面した物件です!

福岡県福岡市中央区天神2-5-17
158.35m2(47.90坪)
922,075円(税込)
- 天神西通り沿いの物件です

福岡県福岡市中央区大名2-6-10
45.19m2(13.67坪)
270,666円(税込)
- 地下鉄「天神駅」より徒歩3分、2025年2月竣工の新築物件です。

福岡県福岡市中央区大名2-8-19
82.81m2(25.05坪)
446,457円(税込)
- 地下鉄「天神駅」より徒歩3分、2025年2月竣工の新築物件です。

福岡県福岡市中央区大名2-8-19
82.81m2(25.05坪)
446,457円(税込)
- 地下鉄「天神駅」より徒歩3分、2025年2月竣工の新築物件です。

福岡県福岡市中央区大名2-8-19
77.29m2(23.38坪)
366,960円(税込)
今日チェックした物件
お急ぎの方はお電話からお気軽にどうぞ!
092-716-5000 営業時間 / 10:00〜17:00 定休日 / 土曜・日曜・祝日


092-716-5000


















092-716-5000