情報更新日:2025年11月17日/広告有効期限:なし
表示閲覧回数(過去30日間):40
お急ぎの方はお電話からお気軽にどうぞ!
092-716-5000 営業時間 / 10:00〜17:00 定休日 / 土曜・日曜・祝日
>物件詳細情報
| 基本情報 | |
|---|---|
| 物件番号 | 100079053030 |
| 店舗形態 | 店舗, 事務所 |
| オススメ業種 | 塾・学校・教育関係, 美容関係, 事務所, サービス業 |
| 物件名 | とわたビル |
| 物件の状態 | 空き |
| 引越し時期 | 2025(令和7)年11月上旬 |
| 契約形態と期間 |
定期契約期間:5年間再契約:不可 |
| 所在地・交通 | |
|---|---|
| 所在地 | 福岡県福岡市南区大橋1-14-2 |
| 交 通1 | 西鉄天神大牟田線大橋駅 徒歩1分 |
| 交 通2 | 西鉄バス大橋 徒歩2分 |
| 賃料 | |
|---|---|
| 賃 料 | 186,780円(税込) |
| 敷 金 |
6ヶ月 |
| その他月額費用 1 | 看板料 55,000円(税込) |
| 精算方法 | 実費 |
| その他 | |
|---|---|
| 備考 | 定期借家契約5年/スケルトン/ガス引き込み無し/ 給排水設備確認中(無しの可能性あり)※引き込む場合はB工事/ NG:風営法許可が必要な業種・重飲食・学習塾・クリニック・ジム・業種被り(要相談)/ 解約予告:6ヶ月/違約金:1年未満賃料2ヶ月分2年未満賃料1ヶ月分/ |
| 建物 | |
|---|---|
| 建物構造 | 鉄筋コンクリート造 |
| 建物階建て |
地上6階 |
| 施工年月 | 1984(昭和59)年 10月 |
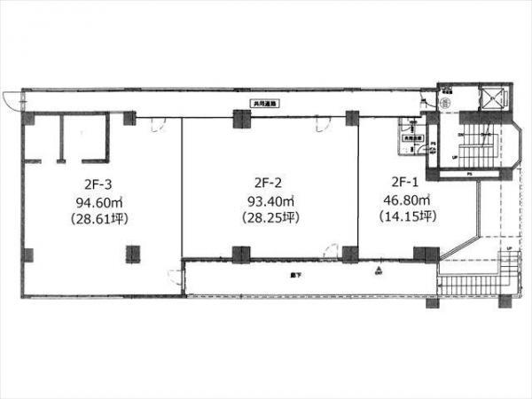
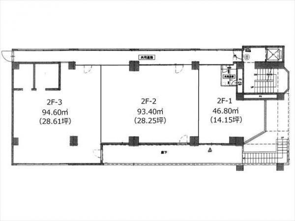
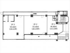
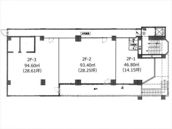
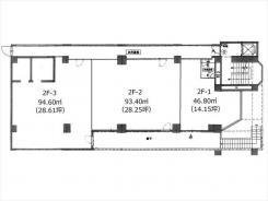
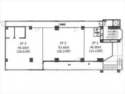
| 募集物件の階数 | 地上 2階 2F-1号室 |
| 契約面積 | 46.80m2(14.16坪) |
| 用途地域 | 商業地域 |
| 設備 | |
|---|---|
| エレベータ | 無 |
| エアコン | 無 |
| トイレ | 無 |
| 給湯室 | 無 |
| キッチン | 無 |
| ネット環境 | 無 |
| 床仕様 | スケルトン |
| セキュリティ | 無 |
| 利用時間 | 24時間 |
| シャッター | 無 |
| 照明設備 | 無 |
| 内装業者指定 | 無 |
| 駐車場 | |
|---|---|
| 状 況 | 無し |
| 取引情報 | |
|---|---|
| 取引態様 | 専任 |
| 客付 | 可 |
この物件をチェックした人はこんな物件も見ています
- 居抜き料見直しました!!鳥飼エリアの1階路面店舗!美容室の居抜き物件です!

福岡県福岡市中央区鳥飼1-5-33
103.90m2(31.43坪)
310,860円(税込)
- 福岡銀行 小笹支店の向かいの立地になります!

福岡県福岡市中央区小笹1-5-1
49.36m2(14.93坪)
198,000円(税込)
- 美野島近くの物件です。事務所利用可。現場事務所などご相談可。

福岡県福岡市博多区博多駅前4-35-7
43.62m2(13.20坪)
55,000円(税込)
- 2025年12月竣工予定、大正通り沿いの新築オフィスビル!赤坂駅まで徒歩2分の好立地です!

福岡県福岡市中央区赤坂1-13-35
47.77m2(14.45坪)
309,953円(税込)
- 2025年12月竣工予定、大正通り沿いの新築オフィスビル!赤坂駅まで徒歩2分の好立地です!

福岡県福岡市中央区赤坂1-13-35
48.20m2(14.58坪)
312,741円(税込)
今日チェックした物件
お急ぎの方はお電話からお気軽にどうぞ!
092-716-5000 営業時間 / 10:00〜17:00 定休日 / 土曜・日曜・祝日


092-716-5000


















092-716-5000