情報更新日:2025年10月24日/広告有効期限:なし
表示閲覧回数(過去30日間):29
お急ぎの方はお電話からお気軽にどうぞ!
092-716-5000 営業時間 / 10:00〜17:00 定休日 / 土曜・日曜・祝日
>物件詳細情報
| 基本情報 | |
|---|---|
| 物件番号 | 100079053055235 |
| 店舗形態 | ロードサイド, 店舗, 事務所 |
| オススメ業種 | 物販関係, サービス業, 事務所 |
| 物件名 | エム・スクエア |
| 物件の状態 | 空き |
| 引越し時期 | 2025(令和7)年10月上旬 |
| 契約形態と期間 |
普通契約期間:2年間16,500円 |
| 所在地・交通 | |
|---|---|
| 所在地 | 福岡県福岡市西区今宿2-5-4 |
| 交 通1 | JR筑肥線今宿駅 徒歩9分 |
| 交 通2 | 昭和バス今宿横町 徒歩1分 |
| 賃料 | |
|---|---|
| 賃 料 | 123,502円(税込) |
| 敷 金 |
6ヶ月 |
| 精算方法 | 実費 |
| その他 | |
|---|---|
| 備考 | 現状渡し/軽飲食相談可/重飲食要相談/ NG:風営法許可が必要な業種・ガールズバー・カラオケ設置・託児所・デイサービス系(業種被りのため要相談)・美容室(業種被りのため要相談)/看板:敷地内1区画は無料※追加1区画につき月額2,000円+税/解約予告:3か月、短期解約違約金:1年未満敷金30%、2年未満敷金20%/ |
| 建物 | |
|---|---|
| 建物構造 | 鉄骨造 |
| 建物階建て |
地上2階 |
| 施工年月 | 1998(平成10)年 04月 |
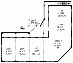
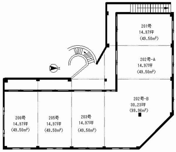
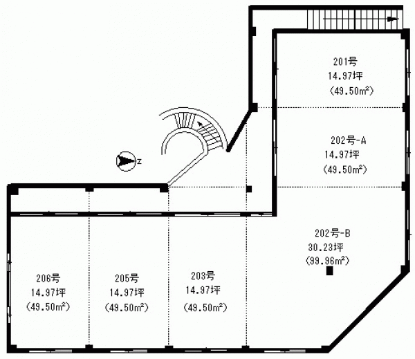
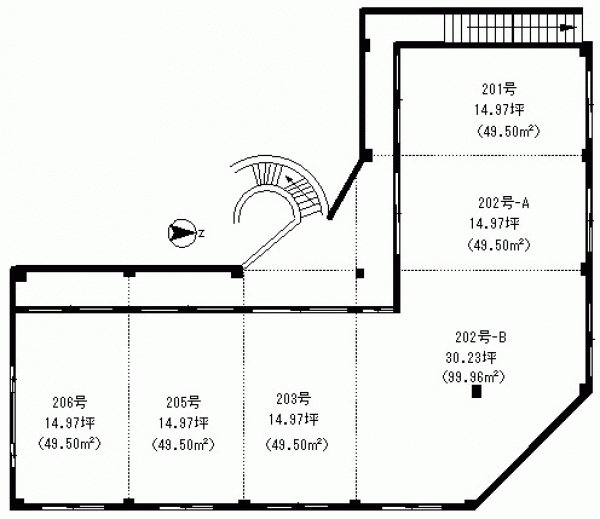
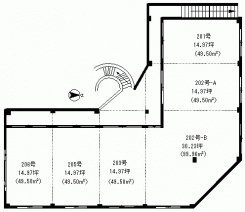
| 募集物件の階数 | 地上 2階 202A号室 |
| 契約面積 | 49.50m2(14.97坪) |
| 用途地域 | 1種住居 |
| 設備 | |
|---|---|
| 水道 | 公営 |
| 下水道 | 公共下水 |
| ガス | LPG |
| エレベータ | 無 |
| エアコン | 無 |
| トイレ | 有/共用 |
| 給湯室 | 無 |
| キッチン | 無 |
| ネット環境 | 無 |
| 床仕様 | スケルトン |
| セキュリティ | 無 |
| 利用時間 | 24時間 |
| シャッター | 有/手動 |
| 照明設備 | 有 |
| 内装業者指定 | 無 |
| 駐車場 | |
|---|---|
| 状 況 | 無し |
| 取引情報 | |
|---|---|
| 取引態様 | 専任 |
| 客付 | 可 |
この物件をチェックした人はこんな物件も見ています
- 赤坂けやき通り沿いです!

福岡県福岡市中央区赤坂2-3-13
361.32m2(109.30坪)
961,928円(税込)
- 天神西通りに面した物件です!

福岡県福岡市中央区天神2-5-17
158.35m2(47.90坪)
922,075円(税込)
- 博多駅近の事務所使用可能なリノベーション物件です!

福岡県福岡市博多区博多駅前1-18-15
29.95m2(9.06坪)
110,000円(税込)
- 「大橋」交差点の角地にあり視認性は抜群です!

福岡県福岡市南区大橋4-1-1
84.53m2(25.57坪)
297,000円(税込)
- JR筑肥線「今宿」駅前の好立地です!

福岡県福岡市西区今宿駅前1-3-28
44.55m2(13.48坪)
118,800円(税込)
今日チェックした物件
- 希少物件に久しぶりに空室が出ます。港湾地区でお探しの企業様は一見の価値ありです。
-

福岡県福岡市博多区沖浜町11-10
862.12m2(260.79坪)
1,721,214円(税込)
- 筑紫通り面するオフィスビル☆
-

福岡県福岡市博多区博多駅東3-1-26
61.59m2(18.63坪)
賃料未定
- 国体道路沿いの1階店舗です!業種等、ご相談ください!
-

福岡県福岡市中央区今泉1-22-20
69.27m2(20.95坪)
806,575円(税込)
- 博多駅・祇園駅ダブルアクセス可能なセットアップオフィス!最新かつ上質なインテリアを完備した、おしゃれでスタイリッシュな空間になってます!ラウンジや貸し会議室も完備。
-

福岡県福岡市博多区博多駅前1-11-13
139.84m2(42.30坪)
715,000円(税込)
お急ぎの方はお電話からお気軽にどうぞ!
092-716-5000 営業時間 / 10:00〜17:00 定休日 / 土曜・日曜・祝日


092-716-5000



















092-716-5000