情報更新日:2026年01月08日/広告有効期限:2026年03月15日
表示閲覧回数(過去30日間):38
お急ぎの方はお電話からお気軽にどうぞ!
092-716-5000 営業時間 / 10:00〜17:00 定休日 / 土曜・日曜・祝日
>物件詳細情報
| 基本情報 | |
|---|---|
| 物件番号 | 100079053055242 |
| 店舗形態 | 事務所, 路面店舗, 店舗(飲食店可) |
| オススメ業種 | 事務所, サービス業, 物販関係, 軽飲食 |
| 物件名 | マーケットビル赤坂(mb赤坂) |
| 物件の状態 | 空き |
| 引越し時期 | 即 |
| 契約形態と期間 |
定期契約期間:7年間再契約:不可 |
| 所在地・交通 | |
|---|---|
| 所在地 | 福岡県福岡市中央区赤坂3-9-25 |
| 交 通1 | 地下鉄空港線赤坂駅 徒歩10分 |
| 交 通2 | 地下鉄七隈線桜坂駅 徒歩12分 |
| 賃料 | |
|---|---|
| 賃 料 | 254,826円(税込) |
| 敷 金 |
8ヶ月 |
| 精算方法 | 実費 |
| その他 | |
|---|---|
| 備考 | NG業種:重飲食/保証会社指定有/ |
| 建物 | |
|---|---|
| 建物構造 | 鉄筋コンクリート造 |
| 建物階建て |
地上4階 |
| 施工年月 | 1981(昭和56)年 09月 |
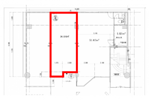
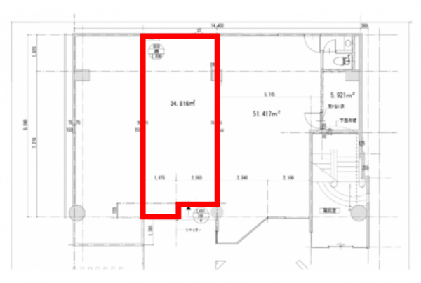
| 募集物件の階数 | 地上 1階 A号室 |
| 契約面積 | 34.81m2(10.53坪) |
| 用途地域 | 商業地域 |
| 設備 | |
|---|---|
| 水道 | 公営 |
| 下水道 | 公共下水 |
| ガス | LPG |
| エレベータ | 無 |
| エアコン | 無 |
| トイレ | 無 |
| 給湯室 | 無 |
| キッチン | 無 |
| ネット環境 | 無 |
| セキュリティ | 機械警備 |
| 利用時間 | 24時間 |
| シャッター | 無 |
| 照明設備 | 無 |
| 内装業者指定 | 無 |
| 駐車場 | |
|---|---|
| 状 況 | 無し |
| 取引情報 | |
|---|---|
| 取引態様 | 媒介 |
| 客付 | 不可 |
この物件をチェックした人はこんな物件も見ています
- 天神西通りに面した物件です!

福岡県福岡市中央区天神2-5-17
158.35m2(47.90坪)
922,075円(税込)
- 地下鉄七熊線「天神南」駅徒歩3分の好立地物件です!

福岡県福岡市中央区春吉3-22
40.50m2(12.25坪)
363,825円(税込)
- 地下鉄七熊線「天神南」駅徒歩3分の好立地物件です!

福岡県福岡市中央区春吉3-22
56.53m2(17.10坪)
470,250円(税込)
- 地下鉄七熊線「天神南」駅徒歩3分の好立地物件です!

福岡県福岡市中央区春吉3-22
53.22m2(16.10坪)
442,750円(税込)
- 下大利駅徒歩4分!!敷地内駐車場複数台契約可!

福岡県大野城市東大利1-14-15
36.72m2(11.11坪)
88,000円(税込)
今日チェックした物件
- 筑紫通に面するオフィス物件です!
-

福岡県福岡市博多区博多駅南2-1-9
251.14m2(75.97坪)
賃料未定
- 賃料見直しました!!六本松の新築物件です!業種ご相談ください!敷金0プラン選べます!
-

福岡県福岡市中央区六本松2-1-12
54.97m2(16.63坪)
255,948円(税込)
- 地下鉄空港線「東比恵」駅徒歩2分の物件です!
-

福岡県福岡市博多区東比恵1-4-10
983.80m2(297.60坪)
賃料未定
- 白壁の美しい古民家です。敷地外にも賃貸可能な土地があり駐車場として契約可能です!
-

福岡県朝倉郡筑前町山隈1000
249.57m2(75.49坪)
100,000円(税込)
- 昭和通りに面したビルです!
-

福岡県福岡市中央区天神3-4番2号
144m2(43.56坪)
479,160円(税込)
お急ぎの方はお電話からお気軽にどうぞ!
092-716-5000 営業時間 / 10:00〜17:00 定休日 / 土曜・日曜・祝日


092-716-5000













092-716-5000