情報更新日:2025年07月11日/広告有効期限:なし
表示閲覧回数(過去30日間):24
お急ぎの方はお電話からお気軽にどうぞ!
092-716-5000 営業時間 / 10:00〜17:00 定休日 / 土曜・日曜・祝日
>物件詳細情報
| 基本情報 | |
|---|---|
| 物件番号 | 100079053055254 |
| 店舗形態 | 事務所 |
| オススメ業種 | 事務所 |
| 物件名 | メゾンベルビュー |
| 物件の状態 | 入居中 |
| 引越し時期 | 2026(令和8)年01月上旬 |
| 契約形態と期間 |
普通契約期間:2年間16,500円 |
| 所在地・交通 | |
|---|---|
| 所在地 | 福岡県福岡市博多区元町1-8-6 |
| 交 通1 | JR鹿児島本線南福岡駅 徒歩1分 |
| 交 通2 | 西鉄バス雑餉隈 徒歩7分 |
| 賃料 | |
|---|---|
| 賃 料 | 106,480円(税込) |
| 敷 金 |
6ヶ月 |
| その他月額費用 1 | 町費 400円(税込) |
| 精算方法 | 実費 |
| その他 | |
|---|---|
| 備考 | 事務所仕上げ/店舗前平置き駐車場1台:11,000円(月額)、敷金2か月/駐車場プレート代3,000円+税/解約予告6か月/短期解約違約金:1年未満敷金30% 2年未満敷金20%/ |
| 建物 | |
|---|---|
| 建物構造 | 鉄筋コンクリート造 |
| 建物階建て |
地上14階 |
| 施工年月 | 1989(平成元年)年 08月 |
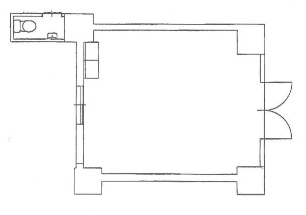
| 募集物件の階数 | 地上 1階 101号室 |
| 契約面積 | 29.20m2(8.83坪) |
| 用途地域 | 商業地域 |
| 設備 | |
|---|---|
| 水道 | 公営 |
| 下水道 | 公共下水 |
| ガス | 都市ガス |
| エレベータ | 有 |
| エアコン | 有り/個別 |
| トイレ | 有/専用 |
| 給湯室 | 無 |
| キッチン | 有/専用 |
| ネット環境 | 無 |
| 床仕様 | タイルカーペット |
| セキュリティ | 無 |
| シャッター | 無 |
| 照明設備 | 有 |
| 内装業者指定 | 有 |
| 駐車場 | |
|---|---|
| 状 況 | 空有 |
| 駐車料金 | 11,000円(税込) |
| 敷 金 | 2ヶ月 |
| 取引情報 | |
|---|---|
| 取引態様 | 専任 |
| 客付 | 可 |
この物件をチェックした人はこんな物件も見ています
- 中洲川端駅より徒歩4分!事務所仕上げのテナントです!

福岡県福岡市博多区須崎町1-17-1
161.66m2(48.90坪)
753,060円(税込)
- 人気エリアに空きが出ました!

福岡県福岡市中央区大名1-12-52
224.71m2(67.97坪)
1,308,423円(税込)
- 平尾駅近くの1階居抜き店舗です!業種ご相談ください!

福岡県福岡市南区大楠2-19-4
50.40m2(15.25坪)
99,000円(税込)
- JR南福岡駅、徒歩1分の新築物件です!業種ご相談ください。

福岡県福岡市博多区寿町2-4-30.31
43.19m2(13.06坪)
187,000円(税込)
- JR南福岡駅、徒歩1分の新築物件です!業種ご相談ください。

福岡県福岡市博多区寿町2-4-30.31
68.17m2(20.62坪)
248,600円(税込)
今日チェックした物件
お急ぎの方はお電話からお気軽にどうぞ!
092-716-5000 営業時間 / 10:00〜17:00 定休日 / 土曜・日曜・祝日


092-716-5000



















092-716-5000