情報更新日:2025年11月25日/広告有効期限:2026年03月31日
表示閲覧回数(過去30日間):46
お急ぎの方はお電話からお気軽にどうぞ!
092-716-5000 営業時間 / 10:00〜17:00 定休日 / 土曜・日曜・祝日
>物件詳細情報
| 基本情報 | |
|---|---|
| 物件番号 | 1000790530553047 |
| 店舗形態 | 事務所 |
| オススメ業種 | |
| 物件名 | 博多駅前シティビル(旧福岡MIDビル) |
| 物件の状態 | 入居中 |
| 引越し時期 | 2026(令和8)年04月上旬 |
| 契約形態と期間 |
普通契約期間:2年間 |
| 所在地・交通 | |
|---|---|
| 所在地 | 福岡県福岡市博多区博多駅前1-9-3 |
| 交 通1 | 地下鉄空港線祇園駅 徒歩1分 |
| 交 通2 | - |
| 賃料 | |
|---|---|
| 賃 料 | 賃料未定 |
| 敷 金 |
12ヶ月 |
| 精算方法 | 実費 |
| その他 | |
|---|---|
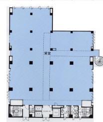
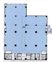
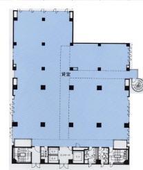
| 備考 | OAフロア有:50mm 天井高:2,400mm 正面玄関時間: 【平日】7:00~19:00 【土曜】7:00~19:00 【日祭】閉扉 |
| 建物 | |
|---|---|
| 建物構造 | 鉄骨鉄筋コンクリート造 |
| 建物階建て |
地上14階 地下1階 |
| 施工年月 | 1983(昭和58)年 05月 |
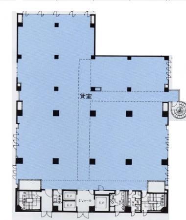
| 募集物件の階数 | 地上 10階 |
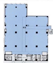
| 契約面積 | 124.23m2(37.58坪) |
| 用途地域 | 商業地域 |
| 設備 | |
|---|---|
| 水道 | 公営 |
| 下水道 | 公共下水 |
| エレベータ | 有/3基以上 |
| エアコン | 有り/個別 |
| トイレ | 有/共用 |
| 給湯室 | 有/共用 |
| ネット環境 | 有 |
| 床仕様 | OAフロア |
| セキュリティ | 機械警備 |
| 利用時間 | 24時間 |
| シャッター | 無 |
| 照明設備 | 有 |
| 駐車場 | |
|---|---|
| 状 況 | 空無 |
| 駐車料金 | 27,500円(税込) |
| 空き台数 | 1台 |
| 取引情報 | |
|---|---|
| 取引態様 | 媒介 |
| 客付 | 不可 |
この物件をチェックした人はこんな物件も見ています
- 天神西通りに面した物件です!

福岡県福岡市中央区天神2-5-17
158.35m2(47.90坪)
922,075円(税込)
- 駐車場は店舗前面と裏手に9台確保可能です!業種、ご相談ください。

福岡県福岡市東区唐原7-5-17
122.30m2(37.00坪)
406,890円(税込)
- JR&地下鉄 博多駅まで徒歩7分!

福岡県福岡市博多区博多駅東2-6-24
80.83m2(24.45坪)
376,530円(税込)
- オーナー負担にてスケルトン渡し相談可!

福岡県福岡市博多区銀天町3-5-15
102.88m2(31.12坪)
132,000円(税込)
- 地下鉄箱崎線「呉服町」駅徒歩1分!環境配慮型、設備充実の築浅オフィスビルです。

福岡県福岡市博多区綱場町7-1
88.14m2(26.66坪)
483,879円(税込)
今日チェックした物件
お急ぎの方はお電話からお気軽にどうぞ!
092-716-5000 営業時間 / 10:00〜17:00 定休日 / 土曜・日曜・祝日


092-716-5000














092-716-5000