情報更新日:2025年11月14日/広告有効期限:2026年02月20日
表示閲覧回数(過去30日間):2
お急ぎの方はお電話からお気軽にどうぞ!
092-716-5000 営業時間 / 10:00〜17:00 定休日 / 土曜・日曜・祝日
>物件詳細情報
| 基本情報 | |
|---|---|
| 物件番号 | 100079053055309550 |
| 店舗形態 | 店舗, 店舗(飲食店可), 事務所 |
| オススメ業種 | サービス業, 物販関係, 軽飲食, 事務所 |
| 物件名 | 飯倉1丁目2階店舗 |
| 物件の状態 | 建設中 |
| 引越し時期 | 相談 |
| 契約形態と期間 |
定期契約期間:5年間再契約:不可 |
| 所在地・交通 | |
|---|---|
| 所在地 | 福岡県福岡市城南区飯倉1-414-4(地番) |
| 交 通1 | 地下鉄七隈線茶山駅 徒歩17分 |
| 交 通2 | - |
| 賃料 | |
|---|---|
| 賃 料 | 賃料未定 |
| 敷 金 |
6ヶ月 |
| 礼 金 | 1ヶ月 |
| その他 | |
|---|---|
| 備考 | 2027年1月竣工予定/※賃料未定/定期借家契約5年/火災保険加入必須/保証会社:全保連(口座振替利用必須)、初回保証料:家賃総額の100%、連帯保証人:必要(法人の場合は代表取締役の方)、継続保証委託料:月額賃料の10%/年/光熱費:実費 |
| 建物 | |
|---|---|
| 建物構造 | 鉄筋コンクリート造 |
| 建物階建て |
地上5階 |
| 施工年月 | 2027(令和9)年 01月 |
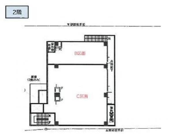
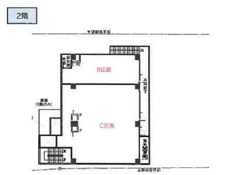
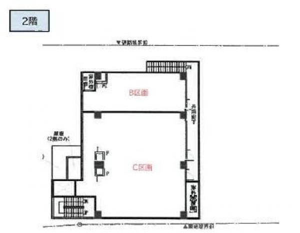
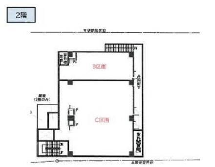
| 募集物件の階数 | 地上 2階 C号室 |
| 契約面積 | 126.42m2(38.24坪) |
| 設備 | |
|---|---|
| エレベータ | 有 |
| 駐車場 | |
|---|---|
| 状 況 | 無し |
| 取引情報 | |
|---|---|
| 取引態様 | 媒介 |
| 客付 | 可 |
この物件をチェックした人はこんな物件も見ています
- 2027年1月竣工予定の新築物件です!業種ご相談ください。

福岡県福岡市城南区飯倉1-414-4(地番)
171.97m2(52.02坪)
賃料未定
- 2027年1月竣工予定の新築物件です!業種ご相談ください。

福岡県福岡市城南区飯倉1-414-4(地番)
44.20m2(13.37坪)
賃料未定
- 2027年1月竣工予定の新築物件です!業種ご相談ください。

福岡県福岡市城南区飯倉1-414-4(地番)
126.42m2(38.24坪)
賃料未定
- 2027年1月竣工予定の新築物件です!業種ご相談ください。

福岡県福岡市中央区今泉2-3(地番)
57.05m2(17.26坪)
400,004円(税込)
- 2027年1月竣工予定の新築物件です!業種ご相談ください。

福岡県福岡市中央区今泉2-3(地番)
50.39m2(15.24坪)
339,999円(税込)
今日チェックした物件
お急ぎの方はお電話からお気軽にどうぞ!
092-716-5000 営業時間 / 10:00〜17:00 定休日 / 土曜・日曜・祝日


092-716-5000













092-716-5000