情報更新日:2025年11月14日/広告有効期限:2026年02月20日
表示閲覧回数(過去30日間):25
お急ぎの方はお電話からお気軽にどうぞ!
092-716-5000 営業時間 / 10:00〜17:00 定休日 / 土曜・日曜・祝日
>物件詳細情報
| 基本情報 | |
|---|---|
| 物件番号 | 100079053055309553 |
| 店舗形態 | 店舗 |
| オススメ業種 | サービス業, 物販関係 |
| 物件名 | 飯倉1丁目2階店舗 |
| 物件の状態 | 建設中 |
| 引越し時期 | 2027(令和9)年01月上旬 |
| 契約形態と期間 |
定期契約期間:5年間再契約:不可 |
| 所在地・交通 | |
|---|---|
| 所在地 | 福岡県福岡市城南区飯倉1-414-4(地番) |
| 交 通1 | 地下鉄七隈線茶山駅 徒歩17分 |
| 交 通2 | - |
| 賃料 | |
|---|---|
| 賃 料 | 賃料未定 |
| 敷 金 |
6ヶ月 |
| 礼 金 | 1ヶ月 |
| その他 | |
|---|---|
| 備考 | 2027年1月竣工予定/※賃料未定/定期借家契約5年/火災保険加入必須/保証会社:全保連(口座振替利用必須)、初回保証料:家賃総額の100%、連帯保証人:必要(法人の場合は代表取締役の方)、継続保証委託料:月額賃料の10%/年/光熱費:実費 |
| 建物 | |
|---|---|
| 建物構造 | 鉄骨鉄筋コンクリート造 |
| 建物階建て |
地上5階 |
| 施工年月 | 2027(令和9)年 01月 |
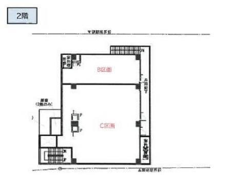
| 募集物件の階数 | 地上 2階 B号室 |
| 契約面積 | 44.20m2(13.37坪) |
| 設備 | |
|---|---|
| エレベータ | 有 |
| 駐車場 | |
|---|---|
| 状 況 | 無し |
| 取引情報 | |
|---|---|
| 取引態様 | 媒介 |
| 客付 | 可 |
この物件をチェックした人はこんな物件も見ています
- 新規開業におすすめです!内覧もご相談ください。

福岡県福岡市博多区冷泉町5-13
130.20m2(39.39坪)
572,000円(税込)
- 礼金0!JR鹿児島本線「博多駅」徒歩6分の好立地物件です!

福岡県福岡市博多区博多駅前4-18-25
73.85m2(22.34坪)
417,780円(税込)
- 新天町商店街すぐ!福岡の中心に位置する物件です!

福岡県福岡市中央区天神2-7-21
218.05m2(65.96坪)
賃料未定
- 西鉄天神駅より徒歩約3分、昭和通り沿いの物件になります!

福岡県福岡市中央区天神1-12-20
917.82m2(277.64坪)
賃料未定
- 地下鉄七熊線「天神南」駅徒歩3分の好立地物件です!

福岡県福岡市中央区春吉3-22
40.50m2(12.25坪)
363,825円(税込)
今日チェックした物件
- 希少物件に久しぶりに空室が出ます。港湾地区でお探しの企業様は一見の価値ありです。
-

福岡県福岡市博多区沖浜町11-10
862.12m2(260.79坪)
1,721,214円(税込)
- 1階りそな銀行の視認性の高いビルです!
-

福岡県福岡市中央区天神1-13-2
55.47m2(16.78坪)
賃料未定
- 地下鉄箱崎線呉服町駅から徒歩2分の物件です!
-

福岡県福岡市博多区綱場町6-15
255.17m2(77.19坪)
1,273,635円(税込)
- JR、地下鉄「博多」駅徒歩約4分の事務所物件です!
-

福岡県福岡市博多区博多駅東2-17-5
61.69m2(18.66坪)
246,312円(税込)
- JR、地下鉄「博多」駅徒歩約4分の事務所物件です!
-

福岡県福岡市博多区博多駅東2-17-5
61.69m2(18.66坪)
246,312円(税込)
お急ぎの方はお電話からお気軽にどうぞ!
092-716-5000 営業時間 / 10:00〜17:00 定休日 / 土曜・日曜・祝日


092-716-5000













092-716-5000