情報更新日:2026年01月13日/広告有効期限:2026年03月20日
表示閲覧回数(過去30日間):13
お急ぎの方はお電話からお気軽にどうぞ!
092-716-5000 営業時間 / 10:00〜17:00 定休日 / 土曜・日曜・祝日
>物件詳細情報
| 基本情報 | |
|---|---|
| 物件番号 | 100079053055309579 |
| 店舗形態 | 店舗, 店舗(飲食店可), 事務所 |
| オススメ業種 | サービス業, 物販関係, 重飲食, 事務所 |
| 物件名 | 渡辺通4丁目2階店舗 |
| 物件の状態 | 建設中 |
| 引越し時期 | 相談 |
| 契約形態と期間 |
定期契約期間:5年間再契約:不可 |
| 所在地・交通 | |
|---|---|
| 所在地 | 福岡県福岡市中央区渡辺通4-1-12 |
| 交 通1 | 地下鉄七隈線渡辺通駅 徒歩4分 |
| 交 通2 | 西鉄天神大牟田線薬院駅 徒歩5分 |
| 賃料 | |
|---|---|
| 賃 料 | 187,088円(税込) |
| 敷 金 |
6ヶ月 |
| 精算方法 | 実費 |
| 礼 金 | 1ヶ月 |
| その他 | |
|---|---|
| 備考 | 2027年1月竣工予定/定期借家契約:5年/共益費賃料に含む/保証会社:全保連(口座振替利用必須)、初回保証料:家賃総額の100%、連帯保証人必要(法人の場合、代表取締役)、 継続保証委託料:月額賃料の10%(年)/火災保険加入必須/光熱費:実費/ |
| 建物 | |
|---|---|
| 建物構造 | 鉄筋コンクリート造 |
| 建物階建て |
地上5階 |
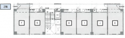
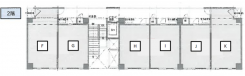
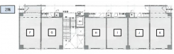
| 募集物件の階数 | 地上 2階 K号室 |
| 契約面積 | 35.14m2(10.63坪) |
| 用途地域 | 商業地域 |
| 駐車場 | |
|---|---|
| 状 況 | 無し |
| 取引情報 | |
|---|---|
| 取引態様 | 媒介 |
| 客付 | 可 |
この物件をチェックした人はこんな物件も見ています
- 天神西通りに面した物件です!

福岡県福岡市中央区天神2-5-17
158.35m2(47.90坪)
922,075円(税込)
- 地下鉄七熊線「天神南」駅徒歩3分の好立地物件です!

福岡県福岡市中央区春吉3-22
40.50m2(12.25坪)
363,825円(税込)
- 地下鉄七熊線「天神南」駅徒歩3分の好立地物件です!

福岡県福岡市中央区春吉3-22
56.53m2(17.10坪)
470,250円(税込)
- 地下鉄七熊線「天神南」駅徒歩3分の好立地物件です!

福岡県福岡市中央区春吉3-22
53.22m2(16.10坪)
442,750円(税込)
- 下大利駅徒歩4分!!敷地内駐車場複数台契約可!

福岡県大野城市東大利1-14-15
36.72m2(11.11坪)
88,000円(税込)
今日チェックした物件
- 天神西通り、グランドホテル前の好立地!
-

福岡県福岡市中央区天神2-7-14
103.70m2(31.37坪)
793,661円(税込)
- 地下鉄箱崎線呉服町駅から徒歩2分の物件です!
-

福岡県福岡市博多区綱場町6-15
255.17m2(77.19坪)
1,273,635円(税込)
- 地下鉄空港線「中洲川端」駅徒歩約7分の物件です!
-

福岡県福岡市博多区古門戸町-1-4
178.94m2(54.13坪)
1,012,231円(税込)
- 西鉄バス「福岡タワー南口(TNC放送会館前)」すぐ!
-

福岡県福岡市早良区百道浜2-3-33
163.67m2(49.51坪)
賃料未定
- 地下鉄「赤坂」駅直結の好立地オフィスビル
-

福岡県福岡市中央区大名2-4-30
113.98m2(34.48坪)
賃料未定
お急ぎの方はお電話からお気軽にどうぞ!
092-716-5000 営業時間 / 10:00〜17:00 定休日 / 土曜・日曜・祝日


092-716-5000













092-716-5000