情報更新日:2025年11月21日/広告有効期限:2026年02月16日
表示閲覧回数(過去30日間):53
お急ぎの方はお電話からお気軽にどうぞ!
092-716-5000 営業時間 / 10:00〜17:00 定休日 / 土曜・日曜・祝日
>物件詳細情報
| 基本情報 | |
|---|---|
| 物件番号 | 100079053055309601 |
| 店舗形態 | 店舗, 事務所 |
| オススメ業種 | 美容関係, 軽飲食, 塾・学校・教育関係, 物販関係 |
| 物件名 | ラ・シック長丘 |
| 物件の状態 | 空き |
| 引越し時期 | 相談 |
| 契約形態と期間 |
定期契約期間:5年間再契約:可 |
| 所在地・交通 | |
|---|---|
| 所在地 | 福岡県福岡市南区長丘5-25-3 |
| 交 通1 | 地下鉄七隈線桜坂駅 徒歩38分 |
| 交 通2 | - |
| 賃料 | |
|---|---|
| 賃 料 | 271,700円(税込) |
| 敷 金 |
3ヶ月 |
| 共益費・管理費 | 11,000円(税込) |
| その他月額費用 1 | あんしん保証 550円(税込) |
| 精算方法 | 実費 |
| その他 | |
|---|---|
| 備考 | 定期借家契約:5年/フリーレント最大3ヵ月/駐車場2台確保可:平置き12,100円・機械式11,000円/賃貸保証:加入要(初回80%)/家賃保証会社:あんしん保証(月額550円/契約者や条件により内容が変更となる場合あり)/ |
| 建物 | |
|---|---|
| 建物構造 | 鉄筋コンクリート造 |
| 建物階建て |
地上9階 |
| 施工年月 | 2025(令和7)年 08月 |
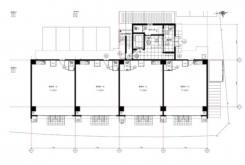
| 募集物件の階数 | 地上 1階 A号室 |
| 契約面積 | 71.25m2(21.55坪) |
| 用途地域 | 1種住居 |
| 設備 | |
|---|---|
| 水道 | 公営 |
| 下水道 | 公共下水 |
| エレベータ | 有 |
| エアコン | 有り/個別 |
| トイレ | 有/専用 |
| 利用時間 | 24時間 |
| 駐車場 | |
|---|---|
| 状 況 | 空有 |
| 空き台数 | 2台 |
| 取引情報 | |
|---|---|
| 取引態様 | 媒介 |
| 客付 | 不可 |
この物件をチェックした人はこんな物件も見ています
- 天神西通りに面した物件です!

福岡県福岡市中央区天神2-5-17
158.35m2(47.90坪)
922,075円(税込)
- 駐車場は店舗前面と裏手に9台確保可能です!業種、ご相談ください。

福岡県福岡市東区唐原7-5-17
122.30m2(37.00坪)
406,890円(税込)
- JR&地下鉄 博多駅まで徒歩7分!

福岡県福岡市博多区博多駅東2-6-24
80.83m2(24.45坪)
376,530円(税込)
- オーナー負担にてスケルトン渡し相談可!

福岡県福岡市博多区銀天町3-5-15
102.88m2(31.12坪)
132,000円(税込)
- 地下鉄箱崎線「呉服町」駅徒歩1分!環境配慮型、設備充実の築浅オフィスビルです。

福岡県福岡市博多区綱場町7-1
88.14m2(26.66坪)
483,879円(税込)
今日チェックした物件
お急ぎの方はお電話からお気軽にどうぞ!
092-716-5000 営業時間 / 10:00〜17:00 定休日 / 土曜・日曜・祝日


092-716-5000


















092-716-5000