情報更新日:2026年02月06日/広告有効期限:2026年04月15日
表示閲覧回数(過去30日間):5
お急ぎの方はお電話からお気軽にどうぞ!
092-716-5000 営業時間 / 10:00〜17:00 定休日 / 土曜・日曜・祝日
>物件詳細情報
| 基本情報 | |
|---|---|
| 物件番号 | 100079053055309653 |
| 店舗形態 | 事務所, レンタルオフィス, 店舗, 倉庫付事務所 |
| オススメ業種 | 医療関係, 塾・学校・教育関係, サービス業, 事務所 |
| 物件名 | 福商会館 |
| 物件の状態 | 入居中 |
| 引越し時期 | 相談 |
| 契約形態と期間 |
定期契約期間:5年間再契約:不可 |
| 所在地・交通 | |
|---|---|
| 所在地 | 福岡県福岡市中央区大名1-12-57 |
| 交 通1 | 地下鉄空港線天神駅 徒歩7分 |
| 交 通2 | - |
| 賃料 | |
|---|---|
| 賃 料 | 1,241,000円(税込) |
| 敷 金 |
7,446,000円 |
| 精算方法 | 実費 |
| その他 | |
|---|---|
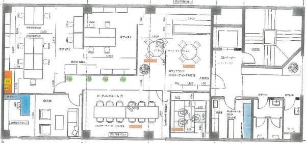
| 備考 | 4階(オフィス仕様)+5階(倉庫)セット契約/4階(204.26㎡)5階(36.72㎡)/NG業種:飲食、24時間営業の業種/ガス引き込みなし/※現状渡しであれば2月末以降、入居可/ |
| 建物 | |
|---|---|
| 建物構造 | 鉄筋コンクリート造 |
| 建物階建て |
地上5階 |
| 施工年月 | 1980(昭和55)年 06月 |
| 募集物件の階数 | 地上 4-5階 |
| 契約面積 | 241m2(72.90坪) |
| 用途地域 | 商業地域 |
| 設備 | |
|---|---|
| 水道 | 公営 |
| 下水道 | 公共下水 |
| エレベータ | 有 |
| エアコン | 有り/個別 |
| トイレ | 有/専用 |
| 給湯室 | 有/専用 |
| キッチン | 無 |
| ネット環境 | 無 |
| 床仕様 | タイルカーペット |
| セキュリティ | 機械警備 |
| 利用時間 | 時間制限有 |
| シャッター | 無 |
| 照明設備 | 有 |
| 内装業者指定 | 無 |
| 駐車場 | |
|---|---|
| 状 況 | 無し |
| 取引情報 | |
|---|---|
| 取引態様 | 媒介 |
| 客付 | 可 |
この物件をチェックした人はこんな物件も見ています
- 天神西通りに面した物件です!

福岡県福岡市中央区天神2-5-17
158.35m2(47.90坪)
922,075円(税込)
- 西鉄大牟田線「西鉄福岡」駅徒歩1分!福岡の中心に位置する立地の良いオフィスです!

福岡県福岡市中央区天神1-13-6
74.48m2(22.53坪)
賃料未定
- 西鉄大牟田線「西鉄福岡」駅徒歩1分!福岡の中心に位置する立地の良いオフィスです!

福岡県福岡市中央区天神1-13-6
31.47m2(9.52坪)
賃料未定
- 西鉄大牟田線「西鉄福岡」駅徒歩1分!福岡の中心に位置する立地の良いオフィスです!

福岡県福岡市中央区天神1-13-6
255.40m2(77.26坪)
賃料未定
- 地下鉄「赤坂」駅直結の好立地オフィスビル

福岡県福岡市中央区大名2-4-30
114.18m2(34.54坪)
賃料未定
今日チェックした物件
お急ぎの方はお電話からお気軽にどうぞ!
092-716-5000 営業時間 / 10:00〜17:00 定休日 / 土曜・日曜・祝日


092-716-5000



















092-716-5000