情報更新日:2026年04月09日/広告有効期限:2026年06月16日
表示閲覧回数(過去30日間):27
お急ぎの方はお電話からお気軽にどうぞ!
092-716-5000 営業時間 / 10:00〜17:00 定休日 / 土曜・日曜・祝日
>物件詳細情報
| 基本情報 | |
|---|---|
| 物件番号 | 100079053055309725 |
| 店舗形態 | 事務所 |
| オススメ業種 | 事務所 |
| 物件名 | 日大ビル |
| 物件の状態 | 空き |
| 引越し時期 | 相談 |
| 契約形態と期間 |
普通契約期間:2年間 |
| 所在地・交通 | |
|---|---|
| 所在地 | 福岡県福岡市博多区美野島2-16-8 |
| 交 通1 | JR鹿児島本線博多駅 徒歩20分 |
| 交 通2 | 西鉄天神大牟田線西鉄平尾駅 徒歩18分 |
| 賃料 | |
|---|---|
| 賃 料 | 156,200円(税込) |
| 敷 金 |
6ヶ月 |
| 共益費・管理費 | 36,520円(税込) |
| 精算方法 | 実費 |
| その他 | |
|---|---|
| 備考 | 内覧可(要事前予約)/駐車場:税込15,400円、駐車場は駐車場管理会社と別契約(サイズ制限:全長4.9m、幅1.85m、高1.55m、重量1.6t)/2年自動更新/短期解約違約金:1年未満1ヶ月/解約予告:3ヶ月前予告/オフィス返し(貸主様指定業者あり)/鍵交換は貸主指定業者で賃借人様負担/保証会社:USEN/ガス:戸別専用メーター撤去済、賃借人様手配/水道:貸主にて検診し請求/電気:キュービクルなし、低圧 |
| 建物 | |
|---|---|
| 建物構造 | 鉄骨鉄筋コンクリート造 |
| 建物階建て |
地上9階 |
| 施工年月 | 1984(昭和59)年 02月 |
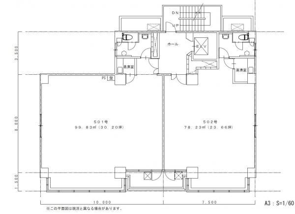
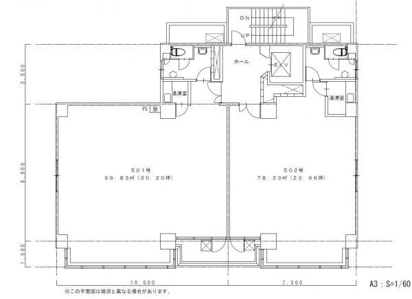
| 募集物件の階数 | 地上 6階 602号室 |
| 契約面積 | 78.21m2(23.66坪) |
| 用途地域 | 商業地域 |
| 設備 | |
|---|---|
| 水道 | 公営 |
| 下水道 | 公共下水 |
| ガス | 都市ガス |
| エレベータ | 有 |
| エアコン | 有り/個別 |
| トイレ | 有/専用 |
| 給湯室 | 有/専用 |
| キッチン | 有/専用 |
| ネット環境 | 無 |
| 床仕様 | OAフロア |
| セキュリティ | 無 |
| 利用時間 | 24時間 |
| シャッター | 無 |
| 照明設備 | 有 |
| 駐車場 | |
|---|---|
| 状 況 | 空有 |
| 駐車料金 | 15,400円(税込) |
| 空き台数 | 1台 |
| 取引情報 | |
|---|---|
| 取引態様 | 媒介 |
| 客付 | 可 |
この物件をチェックした人はこんな物件も見ています
- 天神西通りに面した物件です!

福岡県福岡市中央区天神2-5-17
158.35m2(47.90坪)
922,075円(税込)
- 昭和通り沿い、天神駅より徒歩3分の物件です!

福岡県福岡市中央区天神3-4-7
60.40m2(18.27坪)
281,358円(税込)
- 雑餉隈商店街沿いの飲食可能な路面物件です。

福岡県福岡市博多区南本町2-4-20
26.50m2(8.02坪)
110,000円(税込)
- 3階建て一棟貸し、平置き駐車場が確保できる為、本店・支店の移転先としてご検討いただけます。

福岡県糟屋郡志免町志免4-14-30
360.82m2(109.15坪)
968,000円(税込)
- 地下鉄七隈線「天神南」駅徒歩1分の好立地!事務所物件、リノベーション工事済みです!

福岡県福岡市中央区渡辺通5-23-2
37.74m2(11.42坪)
132,000円(税込)
今日チェックした物件
お急ぎの方はお電話からお気軽にどうぞ!
092-716-5000 営業時間 / 10:00〜17:00 定休日 / 土曜・日曜・祝日


092-716-5000



















092-716-5000