情報更新日:2026年02月02日/広告有効期限:2026年04月18日
表示閲覧回数(過去30日間):121
お急ぎの方はお電話からお気軽にどうぞ!
092-716-5000 営業時間 / 10:00〜17:00 定休日 / 土曜・日曜・祝日
>物件詳細情報
| 基本情報 | |
|---|---|
| 物件番号 | 100079053055309773 |
| 店舗形態 | 事務所, 一棟貸し, 居抜店舗, 店舗 |
| オススメ業種 | 医療関係, 塾・学校・教育関係, 事務所, サービス業 |
| 物件名 | 東公園台一丁目貸店舗 |
| 物件の状態 | 空き |
| 引越し時期 | 即 |
| 契約形態と期間 |
定期契約期間:5年間再契約:可 |
| 所在地・交通 | |
|---|---|
| 所在地 | 福岡県糟屋郡志免町東公園台1-5-27 |
| 交 通1 | JR香椎線須恵駅 徒歩21分 |
| 交 通2 | JR香椎線須恵中央駅 徒歩22分 |
| 賃料 | |
|---|---|
| 賃 料 | 264,000円(税込) |
| 敷 金 |
6ヶ月 |
| 精算方法 | 実費 |
| その他 | |
|---|---|
| 備考 | 定期借家契約5年/現状渡し/平置き駐車場1台(賃料込)/保証会社指定有(ニッポンインシュアまたはUSEN)/ |
| 建物 | |
|---|---|
| 建物構造 | 鉄骨造 |
| 建物階建て |
地上1階 |
| 施工年月 | 1992(平成4)年 04月 |
| 募集物件の階数 | 地上 1階 |
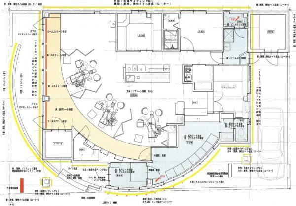
| 契約面積 | 132.95m2(40.22坪) |
| 用途地域 | 1種住居 |
| 設備 | |
|---|---|
| 水道 | 公営 |
| 下水道 | 公共下水 |
| ガス | LPG |
| エレベータ | 無 |
| エアコン | 無 |
| トイレ | 無 |
| 給湯室 | 無 |
| キッチン | 無 |
| ネット環境 | 無 |
| 床仕様 | Pタイル |
| セキュリティ | 無 |
| 利用時間 | 24時間 |
| シャッター | 無 |
| 照明設備 | 無 |
| 内装業者指定 | 無 |
| 駐車場 | |
|---|---|
| 状 況 | 空有無料 |
| 空き台数 | 1台 |
| 取引情報 | |
|---|---|
| 取引態様 | 媒介 |
| 客付 | 可 |
この物件をチェックした人はこんな物件も見ています
- 天神西通りに面した物件です!

福岡県福岡市中央区天神2-5-17
158.35m2(47.90坪)
922,075円(税込)
- 貸家物件出ました!福祉系におすすめです!

福岡県糟屋郡粕屋町酒殿1-4-30
128.55m2(38.89坪)
132,000円(税込)
- オーシャンビューが魅力的な新築物件!飲食店相談可です!

福岡県福津市津屋崎1-36-12
189.07m2(57.19坪)
1,100,000円(税込)
- 賃料減額しました。周船寺駅前の新築物件です!駐車場も確保可能!!フリーレント相談可!

福岡県福岡市西区周船寺1-1-35
52.06m2(15.75坪)
175,000円(税込)
- 博多の商業施設の一区画が空きます!業種ご相談下さい。

福岡県福岡市博多区東光寺町2-6-40
32.43m2(9.81坪)
賃料未定
今日チェックした物件
お急ぎの方はお電話からお気軽にどうぞ!
092-716-5000 営業時間 / 10:00〜17:00 定休日 / 土曜・日曜・祝日


092-716-5000



















092-716-5000