情報更新日:2026年02月20日/広告有効期限:2026年05月18日
表示閲覧回数(過去30日間):14
お急ぎの方はお電話からお気軽にどうぞ!
092-716-5000 営業時間 / 10:00〜17:00 定休日 / 土曜・日曜・祝日
>物件詳細情報
| 基本情報 | |
|---|---|
| 物件番号 | 100079053055309823 |
| 店舗形態 | 店舗, 事務所 |
| オススメ業種 | 美容関係, サービス業, 事務所, 医療関係 |
| 物件名 | 春野ビル |
| 物件の状態 | 入居中 |
| 引越し時期 | 2026(令和8)年04月下旬 |
| 契約形態と期間 |
定期契約期間:10年間再契約:可 |
| 所在地・交通 | |
|---|---|
| 所在地 | 福岡県福岡市中央区春吉3-21-21 |
| 交 通1 | 地下鉄七隈線天神南駅 徒歩2分 |
| 交 通2 | - |
| 賃料 | |
|---|---|
| 賃 料 | 209,000円(税込) |
| 敷 金 |
3ヶ月 |
| 共益費・管理費 | 16,500円(税込) |
| 精算方法 | 実費 |
| その他 | |
|---|---|
| 備考 | 定期借家契約:10年/オフィス仕様/解約予告:3ヵ月/短期解約違約金:1年未満賃料2ヵ月、2年未満賃料1ヵ月/1階看板:空きスペースに相談可/飲食不可/貸室内、ガス・水の引込みなし/ |
| 建物 | |
|---|---|
| 建物構造 | 鉄骨鉄筋コンクリート造 |
| 建物階建て |
地上11階 |
| 施工年月 | 1982(昭和57)年 04月 |
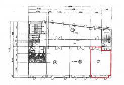
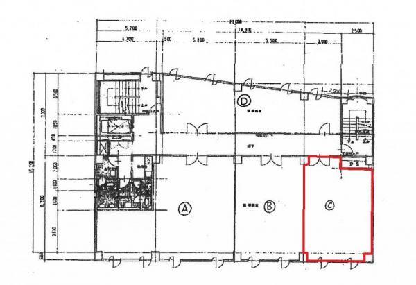
| 募集物件の階数 | 地上 5階 5C号室 |
| 契約面積 | 46.28m2(14.00坪) |
| 用途地域 | 商業地域 |
| 設備 | |
|---|---|
| 水道 | 公営 |
| 下水道 | 公共下水 |
| エレベータ | 有 |
| エアコン | 有 |
| トイレ | 有/共用 |
| 給湯室 | 有/共用 |
| キッチン | 無 |
| ネット環境 | 無 |
| 床仕様 | Pタイル |
| セキュリティ | 無 |
| 利用時間 | 24時間 |
| シャッター | 無 |
| 照明設備 | 有 |
| 内装業者指定 | 無 |
| 駐車場 | |
|---|---|
| 状 況 | 無し |
| 取引情報 | |
|---|---|
| 取引態様 | 媒介 |
| 客付 | 可 |
この物件をチェックした人はこんな物件も見ています
- 天神西通りに面した物件です!

福岡県福岡市中央区天神2-5-17
158.35m2(47.90坪)
922,075円(税込)
- 天神交差点すぐそば!明治通りに面し、空・海・陸の主要交通機関へのアクセスも抜群です!

福岡県福岡市中央区天神1-12-1
87.02m2(26.32坪)
573,249円(税込)
- 2026年2月末完成予定の新築物件!西鉄高宮駅徒歩4分、県道602号線沿い路面店舗です!

福岡県福岡市南区玉川町13番以下未定
90.14m2(27.27坪)
509,949円(税込)
- 有名アパレルショップ多数のエリア!4階建の1棟貸物件です!

福岡県福岡市中央区大名1-14-10
1,131.37m2(342.24坪)
6,776,352円(税込)
- 赤坂駅徒歩5分!周辺にマンションや事業所多数のクリニックモールです!

福岡県福岡市中央区大名1-3-19
181.88m2(55.02坪)
968,352円(税込)
今日チェックした物件
お急ぎの方はお電話からお気軽にどうぞ!
092-716-5000 営業時間 / 10:00〜17:00 定休日 / 土曜・日曜・祝日


092-716-5000













092-716-5000