情報更新日:2026年05月26日/広告有効期限:2026年07月20日
表示閲覧回数(過去30日間):9
お急ぎの方はお電話からお気軽にどうぞ!
092-716-5000 営業時間 / 10:00〜17:00 定休日 / 土曜・日曜・祝日
>物件詳細情報
| 基本情報 | |
|---|---|
| 物件番号 | 100079053055309572 |
| 店舗形態 | 店舗, 店舗(飲食店可), 事務所 |
| オススメ業種 | サービス業, 物販関係, 重飲食, 事務所 |
| 物件名 | 渡辺通4丁目1階店舗 |
| 物件の状態 | 建設中 |
| 引越し時期 | 相談 |
| 契約形態と期間 |
定期契約期間:5年間再契約:不可 |
| 所在地・交通 | |
|---|---|
| 所在地 | 福岡県福岡市中央区渡辺通4-1-12 |
| 交 通1 | 地下鉄七隈線渡辺通駅 徒歩4分 |
| 交 通2 | 西鉄天神大牟田線薬院駅 徒歩5分 |
| 賃料 | |
|---|---|
| 賃 料 | 231,264円(税込) |
| 敷 金 |
6ヶ月 |
| 精算方法 | 実費 |
| 礼 金 | 1ヶ月 |
| その他 | |
|---|---|
| 備考 | 2027年1月竣工予定/定期借家契約:5年/共益費賃料に含む/保証会社:全保連(口座振替利用必須)、初回保証料:家賃総額の100%、連帯保証人必要(法人の場合、代表取締役)、 継続保証委託料:月額賃料の10%(年)/火災保険加入必須/光熱費:実費/ |
| 建物 | |
|---|---|
| 建物構造 | 鉄筋コンクリート造 |
| 建物階建て |
地上5階 |
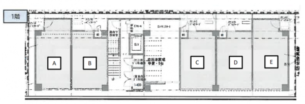
| 募集物件の階数 | 地上 1階 D号室 |
| 契約面積 | 28.99m2(8.77坪) |
| 用途地域 | 商業地域 |
| 駐車場 | |
|---|---|
| 状 況 | 無し |
| 取引情報 | |
|---|---|
| 取引態様 | 媒介 |
| 客付 | 可 |
この物件をチェックした人はこんな物件も見ています
- 天神西通り沿いの物件です

福岡県福岡市中央区大名2-6-10
45.16m2(13.66坪)
賃料未定
- 中央区渡辺通、2027年1月竣工予定の新築物件です。業種ご相談ください。

福岡県福岡市中央区渡辺通4-1-12
61.95m2(18.74坪)
329,824円(税込)
- 中央区渡辺通、2027年1月竣工予定の新築物件です。重飲食相談可!業種ご相談ください。

福岡県福岡市中央区渡辺通4-1-12
28.99m2(8.77坪)
231,264円(税込)
- 中央区渡辺通、2027年1月竣工予定の新築物件です。重飲食相談可!業種ご相談ください。

福岡県福岡市中央区渡辺通4-1-12
29.27m2(8.85坪)
233,640円(税込)
- 2027年1月竣工予定の新築物件です!重飲食相談可!業種ご相談ください。

福岡県福岡市中央区今泉2-3(地番)
50.39m2(15.24坪)
339,999円(税込)
今日チェックした物件
お急ぎの方はお電話からお気軽にどうぞ!
092-716-5000 営業時間 / 10:00〜17:00 定休日 / 土曜・日曜・祝日


092-716-5000













092-716-5000