情報更新日:2026年02月09日/広告有効期限:2026年04月15日
表示閲覧回数(過去30日間):123
お急ぎの方はお電話からお気軽にどうぞ!
092-716-5000 営業時間 / 10:00〜17:00 定休日 / 土曜・日曜・祝日
>物件詳細情報
| 基本情報 | |
|---|---|
| 物件番号 | 100079053055309772 |
| 店舗形態 | 居抜店舗, 店舗, 事務所, 倉庫付事務所 |
| オススメ業種 | 医療関係, 美容関係, サービス業, 事務所 |
| 物件名 | 【居抜き】ヒューベスト天神ビル |
| 物件の状態 | 入居中 |
| 引越し時期 | 相談 |
| 契約形態と期間 |
普通契約期間:2年間0円 |
| 所在地・交通 | |
|---|---|
| 所在地 | 福岡県福岡市中央区大名2-9-1 |
| 交 通1 | 地下鉄空港線天神駅 徒歩5分 |
| 交 通2 | 地下鉄空港線赤坂駅 徒歩5分 |
| 賃料 | |
|---|---|
| 賃 料 | 1,083,676円(税込) |
| 敷 金 |
6ヶ月 |
| その他月額費用 1 | 看板設置料 5,500円(税込) |
| 精算方法 | 実費 |
| 居抜料 |
有5,500,000円 居抜業種:美容クリニック |
| その他 | |
|---|---|
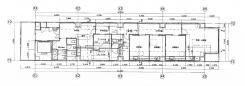
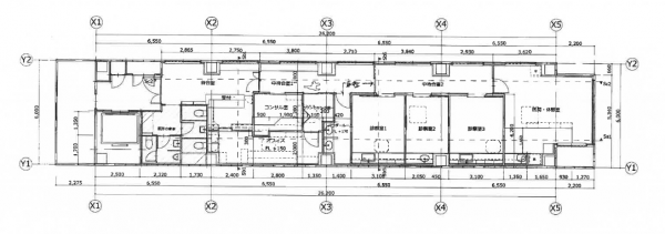
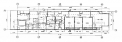
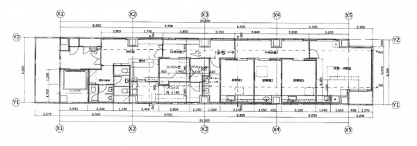
| 備考 | 居抜募集、居抜料550万円(税込)、現テナント:美容クリニック/ 保証会社指定有(ニッポンインシュア)/解約予告:6カ月前/NG業種:飲食店/什器備品は原則全て撤去予定。間仕切り等内装のみ残る/残置物:流し台・釣り棚・間仕切り壁一式・洗面台・カウンター。待合室の椅子は要相談/ |
| 建物 | |
|---|---|
| 建物構造 | 鉄骨造 |
| 建物階建て |
地上11階 |
| 施工年月 | 2021(令和3)年 10月 |
| 募集物件の階数 | 地上 2階 0201号室 |
| 契約面積 | 148.03m2(44.78坪) |
| 用途地域 | 商業地域 |
| 設備 | |
|---|---|
| 水道 | 公営 |
| 下水道 | 公共下水 |
| エレベータ | 有 |
| エアコン | 有り/個別 |
| トイレ | 有/専用 |
| 給湯室 | 有/専用 |
| キッチン | 無 |
| ネット環境 | 無 |
| 床仕様 | OAフロア |
| セキュリティ | 機械警備 |
| 利用時間 | 24時間 |
| シャッター | 無 |
| 照明設備 | 有 |
| 内装業者指定 | 無 |
| 駐車場 | |
|---|---|
| 状 況 | 無し |
| 取引情報 | |
|---|---|
| 取引態様 | 専任 |
| 客付 | 可 |
この物件をチェックした人はこんな物件も見ています
- 天神西通りに面した物件です!

福岡県福岡市中央区天神2-5-17
158.35m2(47.90坪)
922,075円(税込)
- ワンフロア物件、天神駅まで徒歩4分、昭和通り沿いで視認性もよい立地です!サービス、美容、軽飲食にもおすすめです!引き渡し状態はご相談ください。

福岡県福岡市中央区天神3-3-7
94.29m2(28.52坪)
439,208円(税込)
- 「西鉄福岡」駅まで徒歩4分!1階事務所仕様、地下スケルトンの物件です。

福岡県福岡市中央区渡辺通5-16-13
104.10m2(31.49坪)
220,000円(税込)
- SOHO利用可!大濠公園近くのお洒落な外観のマンションです!インターネット無料!

福岡県福岡市中央区大濠公園2-35
38.58m2(11.67坪)
152,000円(税込)
- 博多駅まで徒歩3分の物件です!

福岡県福岡市博多区博多駅東2-2-2
69.36m2(20.98坪)
279,244円(税込)
今日チェックした物件
お急ぎの方はお電話からお気軽にどうぞ!
092-716-5000 営業時間 / 10:00〜17:00 定休日 / 土曜・日曜・祝日


092-716-5000



















092-716-5000